慣れたキッチン動線は今までどおり。吊戸棚や家電収納カウンターでスッキリ収納。
キッチンすぐそばのパントリー。
1坪タイプのシステムバスの場所を確保。ゆったりとくつろげるお風呂になりました。
すぐ手に取りたいものはすぐ近くに収納。キャビネットを設置してスッキリ収納。
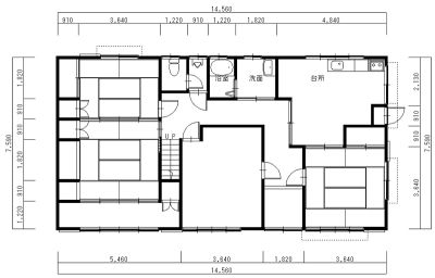
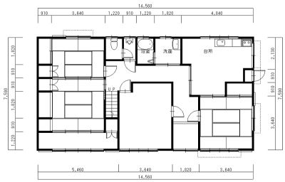
長年住まわれていた大切なお住まいを、更に長く安全に安心して暮らせるように、耐震補強・水廻り・外壁・外構の全面リフォームを行いました。(長期優良住宅化リフォーム推進事業対象工事)
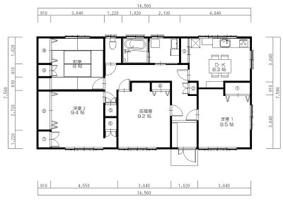
また、小便器スペースの撤去、浴室の拡張、収納部の増設、和室を洋室に変更等を行い、建てた当時とは違う、今のT様ご家族様の暮らし方を見つめなおしたお住まいになりました。

慣れたキッチン動線は今までどおり。吊戸棚や家電収納カウンターでスッキリ収納。

キッチンすぐそばのパントリー。
約0.6坪だったお風呂。狭い浴槽で脚を伸ばせませんでした。

1坪タイプのシステムバスの場所を確保。ゆったりとくつろげるお風呂になりました。

すぐ手に取りたいものはすぐ近くに収納。キャビネットを設置してスッキリ収納。

小便器スペースを撤去し、浴室を拡張。収納部の増設、洋室への変更など今の暮らしに合った間取りに変更しました。