 
                                                
                                                
                                                
| 建物種別 | 戸建て | 
|---|---|
| 改修規模 | 全面リフォーム | 
| 築年数 | 築36年 | 
| 施工期間 | 約90日 | 
| 総工事費 | 約2100万円 | 
| 地域 | 愛知県 | 
| テーマ | 平屋建て、耐震、その他 | 
慣れたキッチン動線は今までどおり。吊戸棚や家電収納カウンターでスッキリ収納。
キッチンすぐそばのパントリー。
1坪タイプのシステムバスの場所を確保。ゆったりとくつろげるお風呂になりました。
すぐ手に取りたいものはすぐ近くに収納。キャビネットを設置してスッキリ収納。
玄関収納コンポリアで大量収納。コの字型のスペースはポストの取り出し口トして利用しています。
広縁のあった明るい和室を娘様の部屋に。広く取った収納部はそれぞれの使い道でご利用できるように3か所に分けました。
北側の和室は床の間を移設し客間としても利用。
収納式階段に架け替えて収納部を増設。普段使いを優先させました。
サッシの交換、断熱材の入れ換えで省エネもUP。外壁を張替え、外構も整えイメージチェンジ。
娘様の車も余裕で停められる広いカーポート。
 
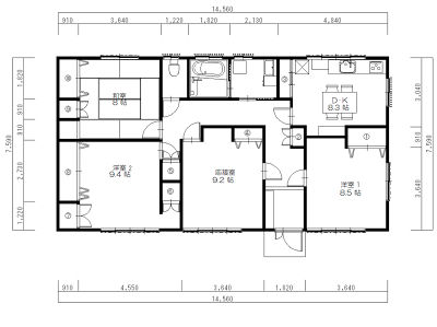
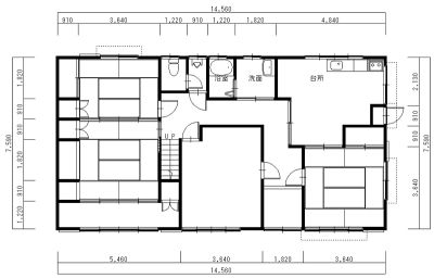
                                                        長年住まわれていた大切なお住まいを、更に長く安全に安心して暮らせるように、耐震補強・水廻り・外壁・外構の全面リフォームを行いました。(長期優良住宅化リフォーム推進事業対象工事)
また、小便器スペースの撤去、浴室の拡張、収納部の増設、和室を洋室に変更等を行い、建てた当時とは違う、今のT様ご家族様の暮らし方を見つめなおしたお住まいになりました。


慣れたキッチン動線は今までどおり。吊戸棚や家電収納カウンターでスッキリ収納。
 
                                                
キッチンすぐそばのパントリー。
約0.6坪だったお風呂。狭い浴槽で脚を伸ばせませんでした。

1坪タイプのシステムバスの場所を確保。ゆったりとくつろげるお風呂になりました。

すぐ手に取りたいものはすぐ近くに収納。キャビネットを設置してスッキリ収納。

玄関収納コンポリアで大量収納。コの字型のスペースはポストの取り出し口トして利用しています。

小便器スペースを撤去し、浴室を拡張。収納部の増設、洋室への変更など今の暮らしに合った間取りに変更しました。