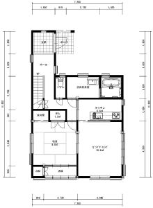
リビングと和室は、補助金を利用し断熱性が高く大きな窓に交換。部屋は明るくなり、床暖房をつければ冬はエアコンなしでも十分温かい。各部屋を繋げ段差を解消したことで床掃除も一気にできるので楽になった。
ペット連れの帰省にも対応できるよう汚れや傷に強く、お手入れのしやすいフロア材を採用。以前より収納を増やしたが居住空間が今までよりとても広々としており気持ちがいい。
部屋全体を明るくするため、間仕切り壁を撤去しひとつの大空間へ。断熱性が高く大きい窓への交換、床暖房の設置で寒さから解放。キッチンはⅡ型にすることで広い通路幅の確保とパントリーを造作。段差を無くした和室は出入りしやすくダイニングと調和するデザインに。ご夫婦が今後も安心して快適に過ごせる空間を実現。

光があまり入らず、隙間風もあり暗く寒かった。
子供たち家族が揃っての団欒には少し手狭だった。

リビングと和室は、補助金を利用し断熱性が高く大きな窓に交換。部屋は明るくなり、床暖房をつければ冬はエアコンなしでも十分温かい。各部屋を繋げ段差を解消したことで床掃除も一気にできるので楽になった。

ペット連れの帰省にも対応できるよう汚れや傷に強く、お手入れのしやすいフロア材を採用。以前より収納を増やしたが居住空間が今までよりとても広々としており気持ちがいい。
壁で区切られた部屋は狭く、光が届かず薄暗く寒い空間でした。

間仕切り壁を撤去し広々とした空間と明るさへ。断熱材、複層ガラス、床暖房で高性能で快適な住まいを実現。