| 建物種別 | 戸建て |
|---|---|
| 改修規模 | 改装・設備交換 |
| 築年数 | 築14年 |
| 施工期間 | 約30日 |
| 地域 | 神奈川県 |
| 家族構成 | お父様・娘様ご家族(娘様・旦那様・お嬢様) |
| テーマ | 団らんキッチン、明るい部屋、ペット、その他 |
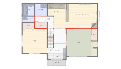
物入を半分にし、寝室の出入り口のドアを設置。収納スペースは可動棚にすることで、半分になっても収納量は十分に確保することができました。
以前はリビングに居ても玄関まで行かなければ寝室に入れませんでした。しかし、廊下の物入を半分にすることで寝室の出入り口を確保し、リビングやお風呂、トイレもスムーズに行けるようになりました。




物入を半分にし、寝室の出入り口のドアを設置。収納スペースは可動棚にすることで、半分になっても収納量は十分に確保することができました。
