| 建物種別 | 戸建て |
|---|---|
| 改修規模 | 改装・設備交換 |
| 築年数 | 築14年 |
| 施工期間 | 約30日 |
| 地域 | 神奈川県 |
| 家族構成 | お父様・娘様ご家族(娘様・旦那様・お嬢様) |
| テーマ | 団らんキッチン、明るい部屋、ペット、その他 |
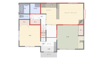
対面キッチンにしたことで、憧れのカフェカウンターにすることができました。
レンジフードの背面は収納スペースになっており、雑貨やご家族のお写真が飾られています。
階段下の収納スペースの建具は廊下に設けました。階段の横から使えるようになり深すぎない奥行きで使い勝手が良くなりました。
外壁側に向いて設置されていたキッチン。孤立してしまいコミュニケーションが取りづらいキッチンでした。


孤立したキッチンは、動線も良くありませんでした。


対面キッチンにしたことで、憧れのカフェカウンターにすることができました。

レンジフードの背面は収納スペースになっており、雑貨やご家族のお写真が飾られています。
以前は階段下の収納スペースだった箇所を冷蔵庫スペースに。

階段下の収納スペースの建具は廊下に設けました。階段の横から使えるようになり深すぎない奥行きで使い勝手が良くなりました。
