縁がない半畳畳を採用し、スタイリッシュな見た目に。
建具は藍墨色の襖で既設の欄間とのバランスを考え、落ち着いた雰囲気を目指した。
新しい玄関引戸で断熱性能を高め、快適空間を実現。
主屋は外壁塗装にて雰囲気を一新。
人数に合わせて靴収納を増やしスッキリとした玄関。
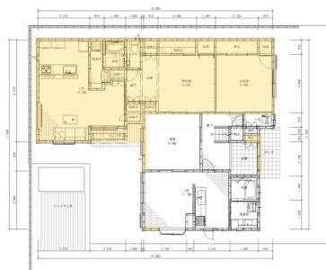
中庭に息子様ご家族の居室を増築。生活リズムが異なった世帯でも、お互いの気配を感じることができるちょうどいい距離感をご提案。
キッチンで料理や家事をしながらもLDで過ごすお子様とコミュニケーションが取れるため、安心して作業ができる。
リビングに設置した高窓からは自然光をより多く取り入れ明るい空間へ。
息子様ご家族との同居に向けご相談いただき、主屋とつなげる増築をご提案。
二世帯の生活リズムが尊重されるよう、水廻りを別々に。
和を基調とした主屋と増築箇所は息子様ご家族ご希望のシックな内装仕上。
お互いが好みの空間、ちょうどいい距離感で過ごせるよう工夫した。

縁がない半畳畳を採用し、スタイリッシュな見た目に。
建具は藍墨色の襖で既設の欄間とのバランスを考え、落ち着いた雰囲気を目指した。

新しい玄関引戸で断熱性能を高め、快適空間を実現。

主屋は外壁塗装にて雰囲気を一新。

人数に合わせて靴収納を増やしスッキリとした玄関。
