PanasonicリフォームClub
TOP TOPリフォーム事例検索検索結果詳細

愛知県 I様邸

ちょうどいい距離感で過ごせる2世帯住宅

リフォームポイント

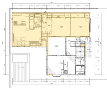
息子様ご家族との同居に向けご相談いただき、主屋とつなげる増築をご提案。
二世帯の生活リズムが尊重されるよう、水廻りを別々に。
和を基調とした主屋と増築箇所は息子様ご家族ご希望のシックな内装仕上。
お互いが好みの空間、ちょうどいい距離感で過ごせるよう工夫した。

ビフォーアフター
ビフォー

アフター

中庭に息子様ご家族の居室を増築。生活リズムが異なった世帯でも、お互いの気配を感じることができるちょうどいい距離感をご提案。

ビフォー

アフター

ビフォー

アフター

キッチンで料理や家事をしながらもLDで過ごすお子様とコミュニケーションが取れるため、安心して作業ができる。

ビフォー

アフター

ビフォー

アフター

施工店情報
パナソニックリフォームクラブ
シンセイ建設株式会社
(旧:リファインおおぶ)

〒474-0061
住所:愛知県大府市共和町5-47
電話:0562-44-7055 FAX:0562-46-5293

■運営会社名 シンセイ建設株式会社
■建設業 愛知県知事許可(特-7)第43294号
■建築士事務所 一級建築士事務所:愛知県知事登録(い-4)第4881号

このお店の情報・事例を見る
シンセイ建設株式会社(旧:リファインおおぶ)のリフォーム事例一覧
このお店の他の事例を見る
ページの先頭へ