PanasonicリフォームClub
TOP TOPリフォーム事例検索検索結果詳細

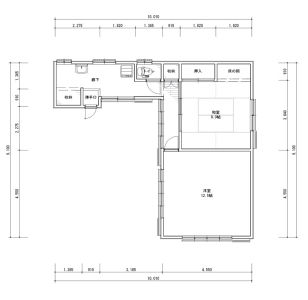
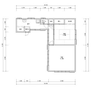
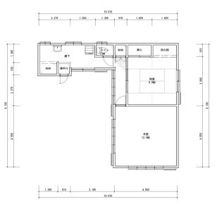
愛知県 J様邸

ご夫婦2人のためのこだわり空間

リフォームポイント

主屋(以前、リフォーム済み)と併せ、ご主人様好みのあたたかみのある和モダンな空間を目指した。
今まで通り馴染み深い畳や障子を残しながらも、断熱・収納・照明・建材は機能的なものを取り入れ、
見た目と使い勝手を両立させた。
寝室の竹ランプや居室の壁面建材など、デザイン性を加味し、更なる癒しの空間を実現。

お客様の声
リフォーム前は洋室、和室をどう活用するのがベストか分からなかった。
まとまりのない要望に対しイメージの提案、実寸での落としこみをしてもらった。
使い勝手をとことん話したことで納得のいくリフォームとなった。
こだわりが詰まった自分たち好みの空間になり大満足。
ビフォーアフター
ビフォー

ハイタイプの収納が多く地震時を心配されていた。

アフター

夕食後から就寝まで、TV鑑賞が日課のご夫婦がくつろげる空間をご提案。
「くつろぎ」を実現すべく、無垢の壁材とタイルを組合せ和モダンな空間へ。

ビフォー

TV廻りは使っていない配線と現役の配線が乱雑な状態。
お客様もどの線がどれに繋がっているか不明確。

アフター

台置きだったTVを壁掛けにし転倒を防止し、スピーカー付きDLはTVに繋いで毎日ご使用。
趣味のゴルフ鑑賞、音楽鑑賞が楽しみに。心配されていたTV廻りの配線は壁面内へ隠ぺい。

ビフォー

夕食後に書き物や書類作業、テレビ鑑賞が日課だが机上は行き場の無いアイテムが多くストレスだった。

アフター

ご夫婦共に書き物や書類整理をする時間が日頃から多い。
それに伴う書類収納を確保し、スッキリした居室に。

ビフォー

アフター

このリフォームで採用したパナソニック商品
施工店情報
パナソニックリフォームクラブ
シンセイ建設株式会社
(旧:リファインおおぶ)

〒474-0061
住所:愛知県大府市共和町5-47
電話:0562-44-7055 FAX:0562-46-5293

■運営会社名 シンセイ建設株式会社
■建設業 愛知県知事許可(特-7)第43294号
■建築士事務所 一級建築士事務所:愛知県知事登録(い-4)第4881号

このお店の情報・事例を見る
シンセイ建設株式会社(旧:リファインおおぶ)のリフォーム事例一覧
このお店の他の事例を見る
ページの先頭へ