 
                                                
                                                
                                                
| 建物種別 | 戸建て | 
|---|---|
| 改修規模 | 全面リフォーム | 
| 築年数 | 築25年 | 
| 工事面積 | 約63m2 | 
| 施工期間 | 約60日 | 
| 工事費 | 約359万円 | 
| 地域 | 愛知県 | 
| テーマ | バリアフリー、ペット | 
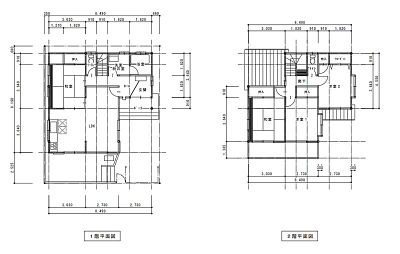
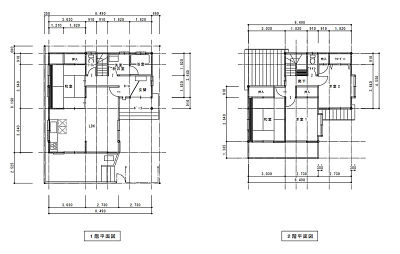
2階の降り口に洗面ボウルを設置。すぐに手洗いが出来て安心です。階段には手すりを取り付け、安全性も向上しました。
建具を一新+床の張り増しによりバリアフリーを実現しました。
Panasonic クロークボックス・VERITIS フロアーSハードコート
ランマをなくし、大きな引違い戸へお取替え。印象がガラリと変わりました。リモコンキーで簡単施開錠
 
                                                        冬の結露対策として内窓を設置。廊下や玄関には手すりを設け、安全対策を。
玄関はリモコンキーで操作できるものへ取替え防犯面も使い勝手も向上しています。





 
                                                
結露でお困りの窓に内窓を取付け断熱性・遮熱性・遮音性が向上し、光熱費を節約。

2階の降り口に洗面ボウルを設置。すぐに手洗いが出来て安心です。階段には手すりを取り付け、安全性も向上しました。
ちょっと足りない玄関収納

建具を一新+床の張り増しによりバリアフリーを実現しました。
Panasonic クロークボックス・VERITIS フロアーSハードコート
昔ながらの玄関

ランマをなくし、大きな引違い戸へお取替え。印象がガラリと変わりました。リモコンキーで簡単施開錠
