| 建物種別 | 戸建て |
|---|---|
| 改修規模 | 全面リフォーム |
| 築年数 | 築25年 |
| 工事面積 | 約39m2 |
| 施工期間 | 約60日 |
| 工事費 | 約668万円 |
| 地域 | 愛知県 |
| テーマ | バリアフリー、ペット |
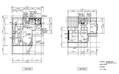
間仕切壁を無くして左右対称の筋交表しに。強度を保ちながらダイニングキッチン・リビングが繋がった広々デザイン空間に。
天井から床までの大容量カップボードでスッキリ収納。扉を閉めれば重厚な家具調が空間にマッチ。並ぶと狭くなりがちなシンクも三方向から使えます。
奥の和室を洋室にやり替え、LDKと一体化。クローゼットとウォークインクローゼットを造り、収納を確保しました。
IHコンロは両面操作が可能。家族で楽しく温かい食卓を囲めます。マルチワイドは中央で2つのコンロがつながっているので大きい鍋も4品同時調理もラクラクです。
リビングのTV背面は調湿+脱臭機能がある内装材を貼りました。お部屋のアクセントと共に生活臭やペットの気になるニオイ対策としても◎
プランの確認をする為、奥様とパナソニックショウルームへ。
目的の展示へ辿り着く前に奥様の目に止まったのは“イロリ”。
簡単な説明をさせて頂くと気に入って頂き、旦那様へ交渉することに!
思わぬ買い物に旦那様はたじたじでしたが、最後は「奥さんがきにいったなら…」とご採用頂くこととなりました!
今では夏はもんじゃ、冬はお鍋と家族で“イロリ”を囲んで楽しくお食事をしているそうです!


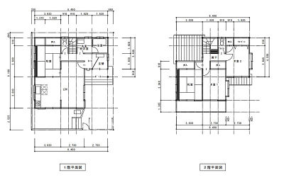
部屋の一番奥に壁を向いて設置されたキッチン。

間仕切壁を無くして左右対称の筋交表しに。強度を保ちながらダイニングキッチン・リビングが繋がった広々デザイン空間に。

天井から床までの大容量カップボードでスッキリ収納。扉を閉めれば重厚な家具調が空間にマッチ。並ぶと狭くなりがちなシンクも三方向から使えます。
せり出した壁がダイニングスペースを圧迫していました。

奥の和室を洋室にやり替え、LDKと一体化。クローゼットとウォークインクローゼットを造り、収納を確保しました。

IHコンロは両面操作が可能。家族で楽しく温かい食卓を囲めます。マルチワイドは中央で2つのコンロがつながっているので大きい鍋も4品同時調理もラクラクです。

リビングのTV背面は調湿+脱臭機能がある内装材を貼りました。お部屋のアクセントと共に生活臭やペットの気になるニオイ対策としても◎
