| 建物種別 | 戸建て |
|---|---|
| 改修規模 | 全面リフォーム |
| 築年数 | 築55年 |
| 工事面積 | 約16m2 |
| 施工期間 | 約70日 |
| 工事費 | 約205万円 |
| 地域 | 愛知県 |
| 家族構成 | お兄様+妹ご夫婦 |
| テーマ | 二世帯、バリアフリー、その他 |
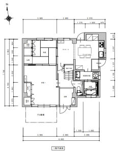
以前はパンチカーペット貼りの階段でしたが、転倒防止対策として、ノンスリップ付きのリフォーム階段上貼りタイプを採用しました。手すりも取り付けたので不安感が解消されました。Panasonic システム階段リフォーム上貼りタイプ/連続手すり
階段下のスペースは収納にし、有効活用しています。
以前の玄関ドアは汎用アルミドアで防犯面が不安でしたが、リフォーム用の玄関ドアへ取替え防犯・断熱性能を向上。お出かけに便利なミラー付きのクロークボックスも設置しました。
Panasonic クロークボックス
ランマをなくし、ドア高さを上げる事で今時の玄関に。
転倒が心配だった階段はノンスリップ付きのシステム階段に。手すりも取り付けました。
階段降り口のトイレドアは衝突防止・通行の妨げを考慮し、スライディングドアを採用しました。
汎用アルミドアだった玄関は、断熱性にも優れた玄関ドアへ取り替えました。
テラス窓にもシャッターを取付け、防犯面も強化。耐風タイプなので台風でも安心です。



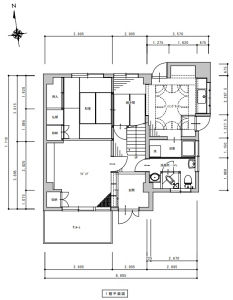
以前はパンチカーペット貼りの階段でしたが、転倒防止対策として、ノンスリップ付きのリフォーム階段上貼りタイプを採用しました。手すりも取り付けたので不安感が解消されました。Panasonic システム階段リフォーム上貼りタイプ/連続手すり
階段下のスペースは収納にし、有効活用しています。

以前の玄関ドアは汎用アルミドアで防犯面が不安でしたが、リフォーム用の玄関ドアへ取替え防犯・断熱性能を向上。お出かけに便利なミラー付きのクロークボックスも設置しました。
Panasonic クロークボックス

ランマをなくし、ドア高さを上げる事で今時の玄関に。
