PanasonicリフォームClub
TOP TOPリフォーム事例検索詳細

愛知県 N様邸

安心して暮らせる家

お店の情報  このお店の他の事例を見る
データ
建物種別 戸建て
改修規模 全面リフォーム
築年数 築55年
総工事面積 約105m2
施工期間 約70日
総工事費 約1340万円
地域 愛知県
家族構成 お兄様+妹ご夫婦
テーマ 二世帯、バリアフリー、その他
全国の「Panasonic リフォーム Club」のお店をさがす
リフォームポイント

昔ながらの間取りで老後を過ごすには辛い我が家を安心して暮らせる家にしたい。とのご依頼を頂きました。
妹夫婦との同居となるので2階にもトイレが欲しい。とのご要望も頂きました。
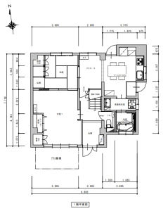
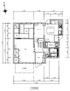
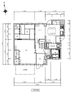
浴室・洗面脱衣室・トイレの間取りを可能な範囲で変更し、家の中で一番事故が起こりやすい浴室に注力しました。
小さくて狭い浴室はリフォムス1616を採用し、あたたかく安心して入れる安らぎの空間となりました。
トイレは停電になっても電池で水を流せるL150を採用。ボタンを押すだけなので操作も簡単で安心してお使い頂けます。
また、既設の部材を残したい。というご要望から一部の建具や棚板をそのまま再利用致しました。
昔の面影を残すことで?懐かしさを感じられる”と喜んで頂けました。

お客様の声
寒い、狭い、危なくて使えなかったお風呂が広くてあたたかなお風呂になって、とても満足しています。
所々に昔の名残があって懐かしい思い出と共に安心して暮らせる家になりとても嬉しいです。
担当者の声
大矢 浩司

お施主様がご高齢に近づいていることもあり、今回は家庭内事故に焦点を当てプラインニング致しました。
各所出来る限りバリアフリーとし、狭くて危険が多かったお風呂場はリフォムスを採用。トイレは停電時も簡単に使用できる様、L150をご提案させて頂きました。設備費用はその分上がってしまいますが、抑えられる所で節約し、安心して暮らして頂ける工事が出来たと思います。
ビフォーアフター
ビフォー

アフター

サンルームを減らして狭くなった分、和室を縮小し、リビングの広さを確保しました。間仕切建具を3枚引戸にすることで開放的な和室になりました

ビフォー

アフター

ガラス障子はそのまま再利用しました。仏間・押入部分を新しい生活スタイルに合わせて割振りをやり替えました。

ビフォー

アフター

既設の部材を一部残したい。というご要望から棚板をリメイクして再利用しました。昔の面影を残したことで"懐かしさを感じられる"と喜んで頂けました。

ビフォー

アフター

フローリングをやり替え、ナチュラルカラーでまとめたリビングに。

ビフォー

アフター

垂れ壁があるため天井を塞ぎ、フードは平型タイプを採用しました。
Panasonic ラクシーナ ネオマーブル柄ホワイト
■スキマレスシンク
■エコカチットサラサラワイドシャワー水栓
■クッキングコンセント
■ガラストップガスコンロ・両面焼きワイドグリル
■耐震ロック
■スライドレールソフトクロージング

ビフォー

アフター

施工店情報
パナソニックリフォームクラブ
矢野建設株式会社
(旧:リファインみなと)

〒455-0831
住所:愛知県名古屋市港区十一屋3丁目63番地
電話:052-384-2800 FAX:052-398-8451

■運営会社名 矢野建設株式会社
■建設業 国土交通大臣許可(特-5)第20106号
■建築士事務所 一級建築士事務所:愛知県知事登録(い-5)第4001号

このお店の情報・事例を見る
矢野建設株式会社(旧:リファインみなと)のリフォーム事例一覧
このお店の他の事例を見る
ページの先頭へ