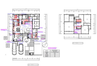
| 建物種別 | 戸建て |
|---|---|
| 改修規模 | 増改築 |
| 築年数 | 築10年 |
| 工事面積 | 約6m2 |
| 施工期間 | 約120日 |
| 工事費 | 約100万円 |
| 地域 | 富山県 |
| 家族構成 | ご夫婦+子供2人 |
| テーマ | 自然素材、ペット、吹き抜け、その他 |
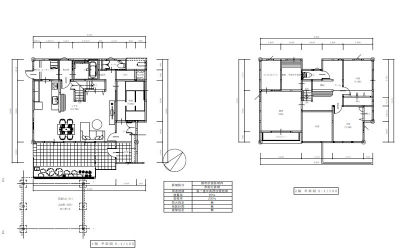
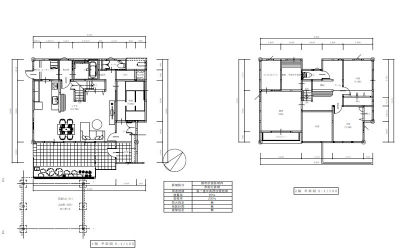
スッキリと綺麗な玄関に生まれ変わりました。
収まりきらなかった靴やコートを収納するために壁一面の玄関収納を提案しました。


玄関収納から溢れた靴やお掃除用品でゴチャゴチャ

スッキリと綺麗な玄関に生まれ変わりました。
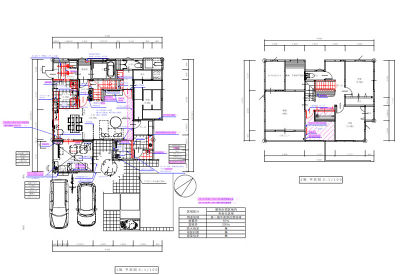
趣味とプライベートの部屋が欲しい。ペットの部屋作りたい。

趣味とプライベートの部屋を増築。吹抜けがあったがその部分にペットの部屋を作り、1階の冷暖房の効率を上げました。