| 建物種別 | 戸建て | 
|---|---|
| 改修規模 | 増改築 | 
| 築年数 | 築10年 | 
| 工事面積 | 約40m2 | 
| 施工期間 | 約120日 | 
| 工事費 | 約800万円 | 
| 地域 | 富山県 | 
| 家族構成 | ご夫婦+子供2人 | 
| テーマ | 自然素材、ペット、吹き抜け、その他 | 
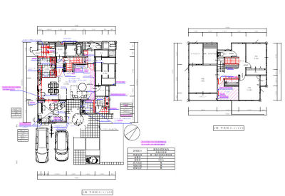
コロナ禍でテレワークのことを考えて、キッチン横にデスクワークやお子様の勉強が見れるようにデスクを併設しました。ウォールナットの無垢材の床をメインに壁、天井はスッキリとさせました。
階段は、踏板をリフォーム用の上貼りの商品を使用し色を統一しました。
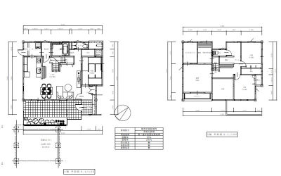
コロナ禍でテレワークのことを考えてキッチン横にデスクワークやお子様の勉強が見れるようにデスクを併設しました。
ウォールナットの無垢材の床をメインに壁・天井はスッキリとさせました。
リビング階段も踏板をリフォーム用上貼りの物を使用し色を統一させました。


                                                
コロナ禍でテレワークのことを考えて、キッチン横にデスクワークやお子様の勉強が見れるようにデスクを併設しました。ウォールナットの無垢材の床をメインに壁、天井はスッキリとさせました。
                                                
階段は、踏板をリフォーム用の上貼りの商品を使用し色を統一しました。
趣味とプライベートの部屋が欲しい。ペットの部屋作りたい。

趣味とプライベートの部屋を増築。吹抜けがあったがその部分にペットの部屋を作り、1階の冷暖房の効率を上げました。