| 建物種別 | 戸建て |
|---|---|
| 改修規模 | 全面リフォーム |
| 築年数 | 築39年 |
| 施工期間 | 約65日 |
| 工事費 | 約290万円 |
| 地域 | 愛知県 |
| 家族構成 | 夫婦+ご両親+お子様 |
| テーマ | 二世帯、バリアフリー、明るい部屋、広々 |
ホワイト×ブルーのツートンカラーに塗り替え、清々しい印象へガラリと変わりました。
屋上ベランダの防水、ブロック塀のやり替えも施工しました。
断熱材を追加してお部屋の寒さを解消しました。
外壁をホワイト×ブルーのツートンカラーに塗り替え、清々しい印象へガラリと変わりました。
屋上ベランダの防水、ブロック塀のやり替えも施工しました。


チョーキング現象が起きていました。

ホワイト×ブルーのツートンカラーに塗り替え、清々しい印象へガラリと変わりました。
屋上ベランダの防水、ブロック塀のやり替えも施工しました。
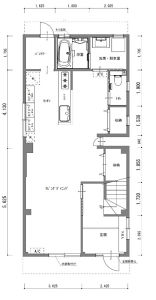
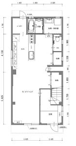
北側に面している洋間は荷物で埋まってしまい生活空間が狭まっていました。
お風呂は子供と一緒に入るにはちょっと手狭なサイズ感で、トイレは階段下のスペースにある為窮屈でした。

間取りを大幅変更しました。
荷物で埋まっていた洋室箇所に浴室・洗面脱衣室を配置し、水廻りスペースを広く確保しました。
キッチンはせっかく工事するなら眺めを変えたいと、若奥様のご希望によりプラン提案を繰り返し、ご納得頂ける間取りにたどり着きました。