PanasonicリフォームClub
TOP TOPリフォーム事例検索詳細

愛知県 O様邸

間取りを変更して水廻りをリニューアル。

お店の情報・お問い合わせ  このお店の他の事例を見る
データ
建物種別 戸建て
改修規模 全面リフォーム
築年数 築39年
工事面積 約8m2
施工期間 約65日
工事費 約225万円
地域 愛知県
家族構成 夫婦+ご両親+お子様
テーマ 二世帯、バリアフリー、明るい部屋、広々
全国の「Panasonic リフォーム Club」のお店をさがす
リフォームポイント

「水廻りがだいぶ古くなってきた。」とのことで、バスルーム・洗面・トイレを入れ替えました。
間取りを変更したことで浴室に新たに窓を設置し、外から光が入る明るい浴室になりました。
洗面台をフロートタイプに。コンパクトスマートに収納♪
デザイン&水撥ね対策にスマートモザイクシートを貼りました。
アクセントにボタニカル柄クロスを貼り、華やかな空間になりました。

お客様の声
工事前に比べ寒く思うことが無くなり、快適に過ごせるようになりました。
収納も多くなったので、キャンプグッズがたっぷりしまえる様になったのでまだまだキャンプグッズを増やしても大丈夫そうです。(笑)
担当者の声
大矢 浩司

間取り変更に伴い、何度もお客様と打合せをして、喜んでいただけるようなプランにたどり着きました。
お子様がいるので、クロスはパステルカラーや柄物を各所に取り入れ、明るい雰囲気のお宅に仕上がりました。
ビフォーアフター
ビフォー

以前は寒さを感じる浴室でした。また、子供と一緒に入るにはちょっと手狭なサイズ感でした。

アフター

間取りを変更したことで浴室に新たに大きな窓を設置し、外から光が入る明るい浴室になりました。

ビフォー

以前は、ランドリー横で狭さを感じる洗面空間でした。

アフター

洗面台をフロートタイプに。コンパクトスマートに収納♪
デザイン&水撥ね対策にスマートモザイクシートを貼りました。

ビフォー

以前はタイル壁の寒さを感じるトイレでした。
また、階段下のスペースにある為窮屈でした。

アフター

アクセントにボタニカル柄クロスを貼り、華やかな空間になりました。

ビフォー

アフター

間取りを変更し、窓換気が取れるようになりました。
広くなって、背面に収納が確保できました。

ビフォー

北側に面している洋間は荷物で埋まってしまい生活空間が狭まっていました。
お風呂は子供と一緒に入るにはちょっと手狭なサイズ感で、トイレは階段下のスペースにある為窮屈でした。

アフター

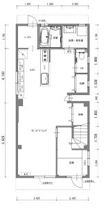
間取りを大幅変更しました。
荷物で埋まっていた洋室箇所に浴室・洗面脱衣室を配置し、水廻りスペースを広く確保しました。
キッチンはせっかく工事するなら眺めを変えたいと、若奥様のご希望によりプラン提案を繰り返し、ご納得頂ける間取りにたどり着きました。

このリフォームで採用したパナソニック商品
施工店情報
パナソニックリフォームクラブ
矢野建設株式会社
(旧:リファインみなと)

〒455-0831
住所:愛知県名古屋市港区十一屋3丁目63番地
電話:052-384-2800 FAX:052-398-8451

■運営会社名 矢野建設株式会社
■建設業 国土交通大臣許可(特-5)第20106号
■建築士事務所 一級建築士事務所:愛知県知事登録(い-5)第4001号

このお店の情報・事例を見る
矢野建設株式会社(旧:リファインみなと)のリフォーム事例一覧
このお店の他の事例を見る
ページの先頭へ