| 建物種別 | マンション |
|---|---|
| 改修規模 | 改装・設備交換 |
| 築年数 | 築31年 |
| 総工事面積 | 約100m2 |
| 施工期間 | 約60日 |
| 総工事費 | 約1200万円 |
| 地域 | 福岡県 |
| 家族構成 | 1世帯4人 |
キッチンの上に余計なものを一切置かずに収納できるキッチン。スリムセンサー水栓なのでいちいち水を止めなくていいのがうれしい。IHは対面マルチワイド、「料理のスムーズさは使ってさらに実感しました」と奥様。
居室を取り込むことで広々と使いやすくなったLDK
可動棚やステンパイプを用いた実用的なWTC。
上枠がなく天井までつながるドアが開放感のあるすっきりとした空間をつくります。左手の室内ドアはベリティス、真っ白なドアが清潔感とクロスと一体感をつくります。右手の玄関収納はフロートタイプを選び、足元にスペースをつくることで実際よりも空間を広く見せる効果、軽くおしゃれな空間にしています。
真っ白な清潔感のある洗面空間、もちろん収納たっぷりです。
世界的建築家マイケル・グレイブスが1989年に建てた築31年のデザイナーズマンションを中古購入しリノベーション。
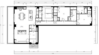
当初は水回りと壁のみでリフォームを検討していましたが、担当者と話しているうちに夢が膨らみ間取り変更を兼ねたリノベーションとなりました。
キッチンを選ぶ際、担当者とパナソニックのショウルームに展示してあったキッチンに一目惚れ。妥協を一切しなかったことで120%満足のいく仕上がりとなりました。


使いづらいL型キッチンは取替が絶対条件でした。

キッチンの上に余計なものを一切置かずに収納できるキッチン。スリムセンサー水栓なのでいちいち水を止めなくていいのがうれしい。IHは対面マルチワイド、「料理のスムーズさは使ってさらに実感しました」と奥様。

居室を取り込むことで広々と使いやすくなったLDK
贅沢で広すぎる玄関ホール。

可動棚やステンパイプを用いた実用的なWTC。

上枠がなく天井までつながるドアが開放感のあるすっきりとした空間をつくります。左手の室内ドアはベリティス、真っ白なドアが清潔感とクロスと一体感をつくります。右手の玄関収納はフロートタイプを選び、足元にスペースをつくることで実際よりも空間を広く見せる効果、軽くおしゃれな空間にしています。
収納が少ない洗面スペース

真っ白な清潔感のある洗面空間、もちろん収納たっぷりです。
