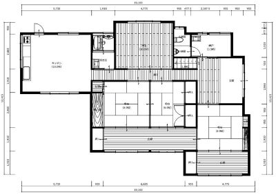
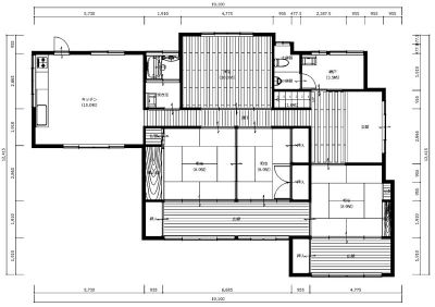
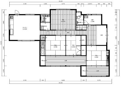
| 建物種別 | 戸建て |
|---|---|
| 改修規模 | 増改築 |
| 築年数 | 築55年 |
| 総工事面積 | 約200m2 |
| 施工期間 | 約70日 |
| 総工事費 | 約1500万円 |
| 地域 | 福岡県 |
| 家族構成 | 1世帯3人 |
| テーマ | 古民家再生、バリアフリー、オール電化 |
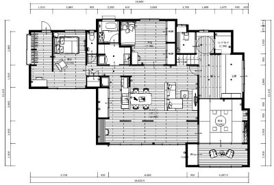
2階の床組が現しの天井
計画当初は2階の床組を見せる予定はありませんでしたが、解体時あまりにも素敵で趣のある床組が出てきたので、塞がずに現しのまま残すことをご提案しました。「みんなに褒めてもらえてうれしい。この天井がとてもお気に入りです」とE様。
キッチンは奥様の希望で対面式に。手元を立ち上げ、調理中の雑多さがリビングから見えないように配慮しました。近くに住むお孫ちゃんたちが遊びに来た際には、調理をしながら遊ぶ様子を見守ることが出来たり、配膳がスムーズにできたりメリットがいっぱいです。キッチンはPanasonicのラクシーナ「フードもIHも魚焼きグリルも全部お手入れが簡単で、ほんとうに家事が楽になりました」と奥様。
上品な陶器の手洗いにブラックの水栓をしつらえ、洗練されたトイレ空間。今後車いすでも使用できるように、トイレ前には車いすの回転に十分なスペースを設け、開口幅も確保。手摺を取付できるように壁には補強材を入れています。
浴槽はコンパクトで、ためたお湯もすぐに冷めてしまっていた以前のお風呂。増築で大きさを広げ、足を延ばしてゆったり浸かることができる広さになりました。最新のユニットバスで室内も浴槽も保温ばっちりです


南側の二間続きの和室

2階の床組が現しの天井
計画当初は2階の床組を見せる予定はありませんでしたが、解体時あまりにも素敵で趣のある床組が出てきたので、塞がずに現しのまま残すことをご提案しました。「みんなに褒めてもらえてうれしい。この天井がとてもお気に入りです」とE様。

キッチンは奥様の希望で対面式に。手元を立ち上げ、調理中の雑多さがリビングから見えないように配慮しました。近くに住むお孫ちゃんたちが遊びに来た際には、調理をしながら遊ぶ様子を見守ることが出来たり、配膳がスムーズにできたりメリットがいっぱいです。キッチンはPanasonicのラクシーナ「フードもIHも魚焼きグリルも全部お手入れが簡単で、ほんとうに家事が楽になりました」と奥様。

上品な陶器の手洗いにブラックの水栓をしつらえ、洗練されたトイレ空間。今後車いすでも使用できるように、トイレ前には車いすの回転に十分なスペースを設け、開口幅も確保。手摺を取付できるように壁には補強材を入れています。
浴槽はコンパクトで、ためたお湯もすぐに冷めてしまっていた以前のお風呂。

増築で大きさを広げ、足を延ばしてゆったり浸かることができる広さになりました。最新のユニットバスで室内も浴槽も保温ばっちりです
