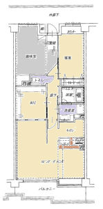
| 建物種別 | マンション |
|---|---|
| 改修規模 | 全面リフォーム |
| 築年数 | 築20年 |
| 総工事面積 | 約71m2 |
| 施工期間 | 約50日 |
| 総工事費 | 約1400万円 |
| 地域 | 千葉県 |
| 家族構成 | 2人 |
| テーマ | 自然素材、その他 |
壁が無くなり広々空間になりました。趣味の自転車の出し入れもラクになります。
自転車タワーを設置。有孔ボードにはヘルメットやカバン、工具など一式掛けられます。
空間の湿度を調節する効果を持っている国産の杉材を選ばれました。リビングは以前より明るくなりました。
キッチンは、Lクラスを採用。色は重厚感のある色を選びました。吊戸と壁を無くしたので、開放感があります。
フードはお掃除がラクになります。ビルトイン食器洗い乾燥機を選びました。カウンターが広々使えます。キッチンに立つと外の景色がよく見えて癒されます。
趣味室のアクティブな空間を通り、ノスタルジックな廊下へと続きます。
浴室の壁厚を使い、浴室を少し奥に移動して、1列だった本棚を2列に増やしました。廊下の壁が収納スペースに変わりました。
保温浴槽や節水シャワーでお財布に優しい。また、汚れが付きにくくお掃除がラクな浴室になりました。
洗面所の天井は調湿効果のある国産の無垢材。壁にエコカラット。お風呂上がりの湯気も気になりません。造付けの収納棚と洗面化粧台にスペースができたので、幅30㎝のキャビネットを追加、更に収納スペースが増えました。
マンションは気密性が高いので、少しの油断で発生してしまう『カビ・結露』に悩まれていたそうです。そして、ご夫婦2人の趣味である自転車の収納場所もお悩みのひとつでした。
無垢材は、周囲の湿度が高い時には湿気を取り込み、逆に周囲の湿度が低い時には湿気を空気中に放出する効果を持っている【天井と床を宮崎県産の飫肥(おび)の杉材を選ばれました】
次に『趣味室』は
玄関から入って右側の部屋の壁を壊し、玄関から続く開放的な趣味室に変更。天井は無垢の杉材、壁はエコカラット、窓は内窓で調湿効果を考えました。
そして、玄関と趣味室を優しく仕切るようにガラスブロックの壁を造作。趣味の自転車、ヘルメット、バックや工具などを掛けられるように、趣味室の壁には見せる収納と取り出しやすさから『有孔(ユウコウ)ボード』を採用。
調湿効果と収納スペースを確保した使いやすい開放的な趣味室になりました。


普段あまり使われていない部屋がもったいないと思われていました。

壁が無くなり広々空間になりました。趣味の自転車の出し入れもラクになります。

自転車タワーを設置。有孔ボードにはヘルメットやカバン、工具など一式掛けられます。
共働きで部屋を占めている時間が長く、結露やカビに悩まれていました。

空間の湿度を調節する効果を持っている国産の杉材を選ばれました。リビングは以前より明るくなりました。
卓上の食器洗い乾燥機がカウンターを占領、吊戸とIHの前に壁があったことで圧迫感がありました。

キッチンは、Lクラスを採用。色は重厚感のある色を選びました。吊戸と壁を無くしたので、開放感があります。
