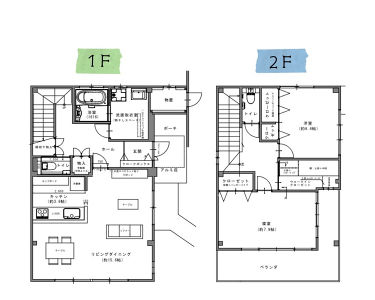
| 建物種別 | 戸建て |
|---|---|
| 改修規模 | 全面リフォーム |
| 築年数 | 築30年 |
| 工事面積 | 約35m2 |
| 施工期間 | 約100日 |
| 工事費 | 約450万円 |
| 地域 | 愛知県 |
| 家族構成 | 大人4人+子供1人 |
| テーマ | 団らんキッチン、明るい部屋、オール電化、その他 |
こもりがちなキッチンスペースは使い勝手の良いラクシーナのペニンシュラ型キッチンを採用。家族の様子が見渡せ、会話が弾みます。お料理しながらお庭が見渡せる開放的な贅沢空間に。
窓は防犯ガラスを採用しました。
L型のカウンターはお子様のお手伝いもラクラク。
オール電化ご希望との事でしたのでIHクッキングヒーターを導入しました。
・エコナビ光火力センサー
・スキマレスシンク
・クッキングコンセント
・ほっとくリーンサイドフード
カップボードのソフトダウンウォールユニットは奥様に嬉しい楽々収納です。
入口脇の壁は表面に凹凸のあるエコカラットを貼り、照明を当てて更に高級感を演出しています。
エコカラット壁は湿気のジメジメも生活臭も取り除いてくれます。
天井までの大きなドアは白い部屋の中でひと際存在感を放ちます。
大きな窓からの採光で昼は明るく活気のあるお部屋、夜はダウンライトで昼とは違う表情を演出し、大人の落ち着いた空間を創り出します。
重厚感のある和室でしたが、明るく広々とした印象のLDKになりました。
入口脇の壁は表面に凹凸のあるエコカラットを貼り、照明を当てて更に高級感を演出しています。
天井までの大きなドアは、白い歯屋の中でひと際存在感を放ちます。
窓は防犯ガラスを採用しました。
大きな窓からの採光で昼は明るく活気のあるお部屋、夜はダウンライトで昼とは違う表情を演出し、大人な落ち着いた空間を創り出します。
こもりがちなキッチンスペースは、使い勝手の良いペニンシュラ型キッチンを採用。
家族の様子が見渡せ、会話が弾みます。
カップボードのソフトダウンウォールユニットは奥様に嬉しい楽々収納です。


以前は重厚感のある昔ながらの二間を繋がる区切られた和室でした。

こもりがちなキッチンスペースは使い勝手の良いラクシーナのペニンシュラ型キッチンを採用。家族の様子が見渡せ、会話が弾みます。お料理しながらお庭が見渡せる開放的な贅沢空間に。
窓は防犯ガラスを採用しました。

L型のカウンターはお子様のお手伝いもラクラク。
オール電化ご希望との事でしたのでIHクッキングヒーターを導入しました。
・エコナビ光火力センサー
・スキマレスシンク
・クッキングコンセント
・ほっとくリーンサイドフード

カップボードのソフトダウンウォールユニットは奥様に嬉しい楽々収納です。

入口脇の壁は表面に凹凸のあるエコカラットを貼り、照明を当てて更に高級感を演出しています。
エコカラット壁は湿気のジメジメも生活臭も取り除いてくれます。
天井までの大きなドアは白い部屋の中でひと際存在感を放ちます。

大きな窓からの採光で昼は明るく活気のあるお部屋、夜はダウンライトで昼とは違う表情を演出し、大人の落ち着いた空間を創り出します。
