PanasonicリフォームClub
TOP TOPリフォーム事例検索詳細

愛知県 K様邸

和室から洋室へ。収納家具をクローゼット収納に。

お店の情報・お問い合わせ  このお店の他の事例を見る
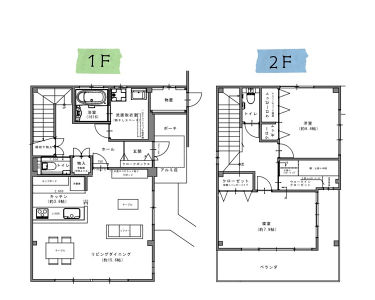
データ
建物種別 戸建て
改修規模 全面リフォーム
築年数 築30年
工事面積 約32m2
施工期間 約100日
工事費 約270万円
地域 愛知県
家族構成 大人4人+子供1人
テーマ 団らんキッチン、明るい部屋、オール電化、その他
全国の「Panasonic リフォーム Club」のお店をさがす
リフォームポイント

寝室の大きな二面窓は二重サッシに取替え、断熱性・遮音性が向上しました。
以前は収納家具を配置しておりましたが、クローゼット収納に替え、スペースを広く活用出来るようにしました。
和室を洋室に替え、押入れも使い勝手の良いハンガーパイプや棚付きのクローゼットへ。
白を基調としたウォークインクローゼットも新設しました。

お客様の声
階段を造り直して頂いたので2階まで楽に行けるようになりました。
水廻りもショールームでじっくり選んだのでとても使いやすいです。
これまでの離れのイメージが一新されて明るいきれいな空間に生まれ変わって驚きました。
担当者の声
大矢浩司

■親・子世帯の程良い距離感に配慮する為、母屋との通路を塞ぎ、玄関を新たに設けました。
■離れとして使用していたのでキッチン・バス・洗面を新しく設置しました。
■オール電化希望の為、IH ・.エコキュートを導入しました。
  親・子世帯の電気メーターを分け、使用料が分かるようにしました。
■2階のみにあった和式のトイレを1階・2階共に洋式に入替えました。
■和室メインでしたが、全ての床をフローリングにしました。
■壁はスタイリッシュにイメージを一新しました。
■照明はシャンデリア、和風ペンダントからダウンライト・ペンダントライトへ。
■階段をやり替え、お子様の安全に配慮し手摺を設置しました。
■娘さん世帯の車が増えるため、庭に駐車スペースを造り、カーポートを
  新設しました。
ビフォーアフター
ビフォー

見晴らしの良い大開口窓ですが、夏暑く冬が寒いお部屋でした。

アフター

寝室は二面の大きな窓からたっぷりと光が差し込み、毎朝を清々しい気持ちで迎えられます。
二重サッシなので夏は涼しく、冬は暖か。遮音効果もあり、快適な寝室です。

ビフォー

シャンデリアを時代に合わせダウンライト照明にしました。

アフター

アクセントの壁紙はシックなブラックで落ち着いた印象の広々空間となりました。

ビフォー

和室から洋室にしました。

アフター

大容量のクローゼットを設置しました。

ビフォー

アフター

白を基調としたウォークインクローゼットを新設しました。
使い勝手を考え、パイプハンガーや棚を配置しました。

ビフォー

アフター

このリフォームで採用したパナソニック商品
施工店情報
パナソニックリフォームクラブ
矢野建設株式会社
(旧:リファインみなと)

〒455-0831
住所:愛知県名古屋市港区十一屋3丁目63番地
電話:052-384-2800 FAX:052-398-8451

■運営会社名 矢野建設株式会社
■建設業 国土交通大臣許可(特-5)第20106号
■建築士事務所 一級建築士事務所:愛知県知事登録(い-5)第4001号

このお店の情報・事例を見る
矢野建設株式会社(旧:リファインみなと)のリフォーム事例一覧
このお店の他の事例を見る
ページの先頭へ