PanasonicリフォームClub
TOP TOPリフォーム事例検索検索結果詳細

愛知県 H様邸

"不便な水廻り"を上質なくつろぎ空間に。

お店の情報・お問い合わせ  このお店の他の事例を見る
データ
建物種別 戸建て
改修規模 改装・設備交換
築年数 築30年
施工期間 約35日
地域 愛知県
全国の「Panasonic リフォーム Club」のお店をさがす
リフォームポイント

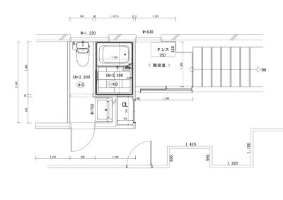
H様ご夫婦が結婚される際、2世帯住宅リフォームをしてもらいましたが、今ではライフスタイルが変わり使い辛くなりました。そこで、毎日の生活を考え、スペースを有効に活用した間取りとこだわりのデザイン・機能で快適な水廻りをご提案しました。お風呂の時間が大好きなご家族のために、バスタイムの快適さはもちろん、毎日のお掃除や家事動線、洗面所やトイレも使い勝手が良くなるように間取り変更も提案し、水廻りが快適な空間に生まれ変わりました。

お客様の声
大好きなお風呂が今まで以上に快適で上質なものになりました。洗面室の収納スペースは見た目が良く、片付けが苦手でもキレイが続く工夫がされており、大変満足しています。
提案力と常に”お客様を大切に”をモットーにした対応が素晴らしいと思います。”もしも可能だったら・・・”の一言を聞き逃さず、結果を出してくれました。不自由だった生活がうそのように一変し、夢のような生活を過ごしています。
担当者の声
お風呂に入るたびに満足していただけるよう、くつろぎがあり上質な空間を目指しました。
ビフォーアフター
ビフォー

物が溢れた洗面化粧台。

アフター

吊戸棚の収納を活かせるよう、新しくステップ付きの洗面化粧台に。

ビフォー

トイレのドアが無いため、使用中は洗面室もお風呂も使えず不便な日々。

アフター

トイレを移設し、洗面脱衣室をリニューアル!奥様セレクトの見せる収納をつくり、見た目も機能も充実。

ビフォー

アフター

トイレが個室になり、洗面室・お風呂を使う人に気兼ねなく使用できるように。

ビフォー

アフター

施工店情報
パナソニックリフォームクラブ
シンセイ建設株式会社
(旧:リファインおおぶ)

〒474-0061
住所:愛知県大府市共和町5-47
電話:0562-44-7055 FAX:0562-46-5293

■運営会社名 シンセイ建設株式会社
■建設業 愛知県知事許可(特-7)第43294号
■建築士事務所 一級建築士事務所:愛知県知事登録(い-4)第4881号

このお店の情報・事例を見る
シンセイ建設株式会社(旧:リファインおおぶ)のリフォーム事例一覧
このお店の他の事例を見る
ページの先頭へ