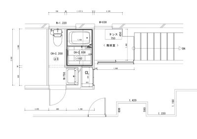
階段室踊り場を縮小し、1坪のお風呂を設置。広くなり、しっかり足が伸ばせるように。
1日の身体の疲れを癒すジェットバス。入浴の楽しみが広がるバステレビ。快適でくつろげるバスタイムが実現。
吊戸棚の収納を活かせるよう、新しくステップ付きの洗面化粧台に。
トイレを移設し、洗面脱衣室をリニューアル!奥様セレクトの見せる収納をつくり、見た目も機能も充実。
トイレが個室になり、洗面室・お風呂を使う人に気兼ねなく使用できるように。
H様ご夫婦が結婚される際、2世帯住宅リフォームをしてもらいましたが、今ではライフスタイルが変わり使い辛くなりました。そこで、毎日の生活を考え、スペースを有効に活用した間取りとこだわりのデザイン・機能で快適な水廻りをご提案しました。お風呂の時間が大好きなご家族のために、バスタイムの快適さはもちろん、毎日のお掃除や家事動線、洗面所やトイレも使い勝手が良くなるように間取り変更も提案し、水廻りが快適な空間に生まれ変わりました。



階段室踊り場を縮小し、1坪のお風呂を設置。広くなり、しっかり足が伸ばせるように。

1日の身体の疲れを癒すジェットバス。入浴の楽しみが広がるバステレビ。快適でくつろげるバスタイムが実現。
物が溢れた洗面化粧台。

吊戸棚の収納を活かせるよう、新しくステップ付きの洗面化粧台に。
トイレのドアが無いため、使用中は洗面室もお風呂も使えず不便な日々。

トイレを移設し、洗面脱衣室をリニューアル!奥様セレクトの見せる収納をつくり、見た目も機能も充実。

トイレが個室になり、洗面室・お風呂を使う人に気兼ねなく使用できるように。
