サッシの交換、断熱材の入れ換えで省エネもUP。外壁を張替え、外構も整えイメージチェンジ。
娘様の車も余裕で停められる広いカーポート。
長年住まわれていた大切なお住まいを、更に長く安全に安心して暮らせるように、耐震補強・水廻り・外壁・外構の全面リフォームを行いました。(長期優良住宅化リフォーム推進事業対象工事)
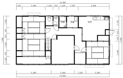
また、小便器スペースの撤去、浴室の拡張、収納部の増設、和室を洋室に変更等を行い、建てた当時とは違う、今のT様ご家族様の暮らし方を見つめなおしたお住まいになりました。

サッシの交換、断熱材の入れ換えで省エネもUP。外壁を張替え、外構も整えイメージチェンジ。
物置は撤去・縮小移設しカーポートを設置することに。

娘様の車も余裕で停められる広いカーポート。

小便器スペースを撤去し、浴室を拡張。収納部の増設、洋室への変更など今の暮らしに合った間取りに変更しました。