| 建物種別 | 戸建て |
|---|---|
| 改修規模 | 改装・設備交換 |
| 築年数 | 築30年 |
| 総工事面積 | 約38m2 |
| 施工期間 | 約82日 |
| 総工事費 | 約1258万円 |
| 地域 | 愛知県 |
| テーマ | 団らんキッチン、二世帯、その他 |
開放的なDKは、料理をしながら家族やお客様との会話が楽しめます。
今までの俵型IHが当たり前と思っていた奥様に、トリプルワイドIHをご提案しました。
奥様に「全ての食器や台所用品を収納できる!」と喜んでいただきました。
床暖房を設置し、とても暖かく快適に過ごせるようになりました。
床暖房付きの掘りごたつは居心地が良すぎて、家族団らんの時間が増えました。
ご主人様が好きなワインを見せながら収納できます。
ソファーから掘りごたつにして、座りやすく、落ち着く居間に変身させました。
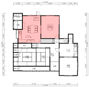
ご両親と同居している築30年の住居の痛みや設備などの老朽化が気になり、2世帯で快適に暮らせる住まいを求めてご相談いただきました。DKには床暖房、居間には掘りごたつを新設し、自然と家族みんなが集まれる暖かい空間を目指しました。


狭くて使い勝手が悪く、動きにくかったキッチン。

開放的なDKは、料理をしながら家族やお客様との会話が楽しめます。

今までの俵型IHが当たり前と思っていた奥様に、トリプルワイドIHをご提案しました。

奥様に「全ての食器や台所用品を収納できる!」と喜んでいただきました。

床暖房を設置し、とても暖かく快適に過ごせるようになりました。

床暖房付きの掘りごたつは居心地が良すぎて、家族団らんの時間が増えました。

DKには床暖房、居間には掘りごたつを設置しいつでも暖かい空間になるように提案しました。