| 建物種別 | 戸建て |
|---|---|
| 改修規模 | 改装・設備交換 |
| 築年数 | 築30年 |
| 施工期間 | 約82日 |
| 地域 | 愛知県 |
| テーマ | 団らんキッチン、二世帯、その他 |
床暖房付きの掘りごたつは居心地が良すぎて、家族団らんの時間が増えました。
ご主人様が好きなワインを見せながら収納できます。
ソファーから掘りごたつにして、座りやすく、落ち着く居間に変身させました。
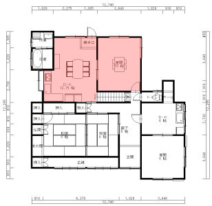
ご両親と同居している築30年の住居の痛みや設備などの老朽化が気になり、2世帯で快適に暮らせる住まいを求めてご相談いただきました。DKには床暖房、居間には掘りごたつを新設し、自然と家族みんなが集まれる暖かい空間を目指しました。



床暖房付きの掘りごたつは居心地が良すぎて、家族団らんの時間が増えました。

ご主人様が好きなワインを見せながら収納できます。

ソファーから掘りごたつにして、座りやすく、落ち着く居間に変身させました。

DKには床暖房、居間には掘りごたつを設置しいつでも暖かい空間になるように提案しました。