| 建物種別 | 戸建て |
|---|---|
| 改修規模 | 改装・設備交換 |
| 築年数 | 築30年 |
| 施工期間 | 約82日 |
| 地域 | 愛知県 |
| テーマ | 団らんキッチン、二世帯、その他 |
開放的なDKは、料理をしながら家族やお客様との会話が楽しめます。
今までの俵型IHが当たり前と思っていた奥様に、トリプルワイドIHをご提案しました。
奥様に「全ての食器や台所用品を収納できる!」と喜んでいただきました。
床暖房を設置し、とても暖かく快適に過ごせるようになりました。
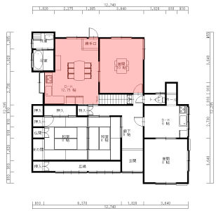
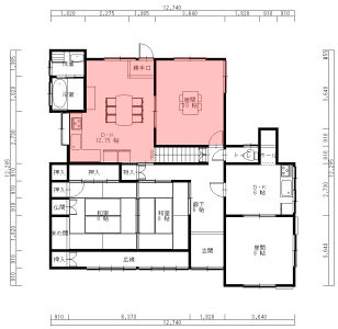
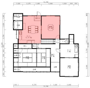
ご両親と同居している築30年の住居の痛みや設備などの老朽化が気になり、2世帯で快適に暮らせる住まいを求めてご相談いただきました。DKには床暖房、居間には掘りごたつを新設し、自然と家族みんなが集まれる暖かい空間を目指しました。


狭くて使い勝手が悪く、動きにくかったキッチン。

開放的なDKは、料理をしながら家族やお客様との会話が楽しめます。

今までの俵型IHが当たり前と思っていた奥様に、トリプルワイドIHをご提案しました。

奥様に「全ての食器や台所用品を収納できる!」と喜んでいただきました。

床暖房を設置し、とても暖かく快適に過ごせるようになりました。

DKには床暖房、居間には掘りごたつを設置しいつでも暖かい空間になるように提案しました。