PanasonicリフォームClub
TOP TOPリフォーム事例検索詳細

兵庫県 M様邸

高齢の両親へ贈る
想いやりリフォーム

お店の情報・お問い合わせ  このお店の他の事例を見る
データ
建物種別 戸建て
改修規模 増改築
築年数 築90年
施工期間 約70日
地域 兵庫県
家族構成 2人
テーマ バリアフリー
全国の「Panasonic リフォーム Club」のお店をさがす
リフォームポイント

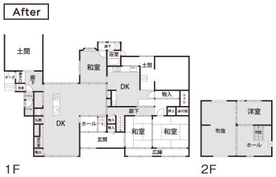
実家のご両親が安心して暮らせるようにとリフォームされたM様。襖によって細かく区切られていた和室部分を一体化し、開放的なLDKへと造り変えました。天井には吹き抜けを設けることで、対面キッチンによって生まれた空間の広がりをより感じられる造りに。断熱改修で冬でもあたたかく、フラットな廊下や段差部分のスロープなど、ご両親にとって暮らしやすい安心の住まいとなりました。

お客様の声
冬場の寒さが軽減され、車椅子での移動もスムーズで、両親に安心して暮らしてもらえる住まいになりました。
ビフォーアフター
ビフォー

アフター

このリフォームで採用したパナソニック商品
施工店情報
パナソニックリフォームクラブ
株式会社クレス 豊岡店
(旧:リファイン豊岡)

〒668-0027
住所:兵庫県豊岡市若松町6番35号
電話:0796-37-8901 FAX:0796-37-8902

■運営会社名 株式会社クレス
■建設業 兵庫県知事許可(特-3)第650958号
■建築士事務所 一級建築士事務所:兵庫県知事登録第01A01754号

このお店の情報・事例を見る
株式会社クレス 豊岡店(旧:リファイン豊岡)のリフォーム事例一覧
このお店の他の事例を見る
ページの先頭へ