| 建物種別 | 戸建て |
|---|---|
| 改修規模 | 増改築 |
| 築年数 | 築90年 |
| 総工事面積 | 約106m2 |
| 施工期間 | 約70日 |
| 総工事費 | 約963万円 |
| 地域 | 兵庫県 |
| 家族構成 | 2人 |
| テーマ | バリアフリー |
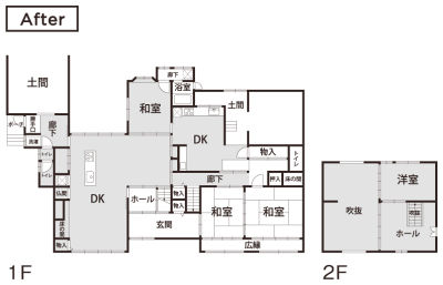
生活動線も見直したことで、ムダな移動もなくなりました。
息子さんご夫婦やお孫さんなどが集まれる団らんのLDK。
実家のご両親が安心して暮らせるようにとリフォームされたM様。襖によって細かく区切られていた和室部分を一体化し、開放的なLDKへと造り変えました。天井には吹き抜けを設けることで、対面キッチンによって生まれた空間の広がりをより感じられる造りに。断熱改修で冬でもあたたかく、フラットな廊下や段差部分のスロープなど、ご両親にとって暮らしやすい安心の住まいとなりました。


