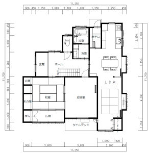
出窓下を増築し、奥行きを確保。
収納場所も十分に確保でき、ホワイトの扉で北側キッチンでも明るくスッキリ。キッチン部のエンドパネルはリビングから手元が
隠れる高さにしたのもポイントです。
ご夫婦が過ごしていた光の入らなかった暗いダイニングが、約21帖の明るいLDK空間に大変身。
出窓下の少しのスペースを増築することでたっぷり収納を確保。
リビング・ダイニングの細々としたものをしまっておくのに
ちょうどいいと大好評!
出窓部分を増築して1坪タイプにサイズアップ。脚を伸ばしてゆったり入浴できます。
手洗いの洗濯に欠かせない広い洗面ボウルは奥様のこだわり。
巾900mmの洗面化粧台でつけ置き洗いもラクラク。
お客様用の食器はキュビオスを食器棚風にすることで、リビングにも馴染み、魅せる収納に。
転倒の恐れもなく安心!
どこに何を納めるかを事前に決めて収納を製作したのでサイズもピッタリ。狭い場所なので圧迫感のないよう、部分的にオープンに。
ペアガラスと電動シャッター。
電動シャッターは寒い時でも窓を開けずに済むし、時間になればタイマーで開閉してくれる機能付き
乱雑になってしまっていたポーチはタイルを張替えて一新
シャンデリアを替えるだけでも空間がリフレッシュされます。
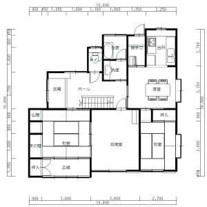
建物・設備共に少しずつ傷みが出てきたことと、生活スタイルが大きく変わったことで、リフォームをお考えになられました。
使わない和室を有効利用し、孫たちが遊びに来た時に、みんなで楽しく過ごせる広くて明るいLDKをご提案。
暗く狭かった水周り空間を大幅に変更し、使い勝手の良いお住まいにリフォームしました。

暗く狭いキッチン

出窓下を増築し、奥行きを確保。
収納場所も十分に確保でき、ホワイトの扉で北側キッチンでも明るくスッキリ。キッチン部のエンドパネルはリビングから手元が
隠れる高さにしたのもポイントです。
使わなくなった南側の和室

ご夫婦が過ごしていた光の入らなかった暗いダイニングが、約21帖の明るいLDK空間に大変身。
暗く収納の少ないリビングダイニング

出窓下の少しのスペースを増築することでたっぷり収納を確保。
リビング・ダイニングの細々としたものをしまっておくのに
ちょうどいいと大好評!
狭く老朽化した浴室

出窓部分を増築して1坪タイプにサイズアップ。脚を伸ばしてゆったり入浴できます。
ボールが小さく水はねが気になる洗面台

手洗いの洗濯に欠かせない広い洗面ボウルは奥様のこだわり。
巾900mmの洗面化粧台でつけ置き洗いもラクラク。
使わない和室を有効利用し、明るく広いLDKに変更

陽当たりはよいが使っていない和室を1坪増築しDKとつなげて明るく広いLDKに。