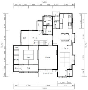
出窓下を増築し、奥行きを確保。
収納場所も十分に確保でき、ホワイトの扉で北側キッチンでも明るくスッキリ。キッチン部のエンドパネルはリビングから手元が
隠れる高さにしたのもポイントです。
ご夫婦が過ごしていた光の入らなかった暗いダイニングが、約21帖の明るいLDK空間に大変身。
出窓下の少しのスペースを増築することでたっぷり収納を確保。
リビング・ダイニングの細々としたものをしまっておくのに
ちょうどいいと大好評!
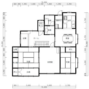
建物・設備共に少しずつ傷みが出てきたことと、生活スタイルが大きく変わったことで、リフォームをお考えになられました。
使わない和室を有効利用し、孫たちが遊びに来た時に、みんなで楽しく過ごせる広くて明るいLDKをご提案。
暗く狭かった水周り空間を大幅に変更し、使い勝手の良いお住まいにリフォームしました。

暗く狭いキッチン

出窓下を増築し、奥行きを確保。
収納場所も十分に確保でき、ホワイトの扉で北側キッチンでも明るくスッキリ。キッチン部のエンドパネルはリビングから手元が
隠れる高さにしたのもポイントです。
使わなくなった南側の和室

ご夫婦が過ごしていた光の入らなかった暗いダイニングが、約21帖の明るいLDK空間に大変身。
暗く収納の少ないリビングダイニング

出窓下の少しのスペースを増築することでたっぷり収納を確保。
リビング・ダイニングの細々としたものをしまっておくのに
ちょうどいいと大好評!
使わない和室を有効利用し、明るく広いLDKに変更

陽当たりはよいが使っていない和室を1坪増築しDKとつなげて明るく広いLDKに。