| 建物種別 | 戸建て |
|---|---|
| 改修規模 | 増改築 |
| 築年数 | 築34年 |
| 施工期間 | 約71日 |
| 地域 | 愛知県 |
| 家族構成 | 2世帯大人3人 |
| テーマ | バリアフリー、明るい部屋、広々 |
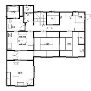
ダイニングキッチンは6帖のスペースを確保。
お孫様もお気に入りのトリプルIHは広々スペースで並んでの調理も可能。
「明るく風を感じる家にしたい」というご要望に対し、根本的な問題解決のために蹴込み板のない「オープン階段」への架け替えをご提案。
使っていなかった和室や、狭く使い勝手の悪かった水廻りの間取りを変更し、「広く・使いやすい、明るく・風を感じる」お住まいへのリフォームとなりました。

キッチンは独立しており、離れた居間で食事をされていました。

ダイニングキッチンは6帖のスペースを確保。

お孫様もお気に入りのトリプルIHは広々スペースで並んでの調理も可能。
狭く、使い勝手の悪かった水廻りの間取りを変更することに。

浴室のサイズアップ、脱衣室・ダイニングキッチンのスペースを確保できました。