| 建物種別 | 戸建て |
|---|---|
| 改修規模 | 増改築 |
| 築年数 | 築34年 |
| 施工期間 | 約71日 |
| 地域 | 愛知県 |
| 家族構成 | 2世帯大人3人 |
| テーマ | バリアフリー、明るい部屋、広々 |
間取りの変更により、1216(0.75坪)から1616(1坪)にサイズUP。白を基調とし、窓も2ヶ所設け、明るい浴室になりました。
洗面化粧台・洗濯機を設置した洗面脱衣室ができました。サイドキャビネットや造作棚で収納スペースもしっかり確保。パネル仕様の扉で明るさにも配慮。
間取りの変更とタンクレストイレの採用で、スペースが広がりました。
「明るく風を感じる家にしたい」というご要望に対し、根本的な問題解決のために蹴込み板のない「オープン階段」への架け替えをご提案。
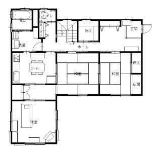
使っていなかった和室や、狭く使い勝手の悪かった水廻りの間取りを変更し、「広く・使いやすい、明るく・風を感じる」お住まいへのリフォームとなりました。

暗く狭かった浴室。

間取りの変更により、1216(0.75坪)から1616(1坪)にサイズUP。白を基調とし、窓も2ヶ所設け、明るい浴室になりました。
浴室横に洗面化粧台はあるものの、間仕切りが無く、脱衣室がありませんでした。

洗面化粧台・洗濯機を設置した洗面脱衣室ができました。サイドキャビネットや造作棚で収納スペースもしっかり確保。パネル仕様の扉で明るさにも配慮。
暗く狭かったトイレ。

間取りの変更とタンクレストイレの採用で、スペースが広がりました。
狭く、使い勝手の悪かった水廻りの間取りを変更することに。

浴室のサイズアップ、脱衣室・ダイニングキッチンのスペースを確保できました。