| 建物種別 | 戸建て |
|---|---|
| 改修規模 | 全面リフォーム |
| 築年数 | 築35年 |
| 施工期間 | 約132日 |
| 地域 | 愛知県 |
| 家族構成 | ご夫妻様、娘様 |
| テーマ | バリアフリー、自然素材、耐震 |
外壁はサイディングを張替え、お色直し。外構も、土地を有効的に使用できるよう、駐車スペースを拡張し一新。
LDKを出ると、広々としたウッドデッキへ。洗濯物をしっかり干すのに最適。夜はお酒を楽しむ憩いの場。
築35年のK様邸。老朽化と耐震性の低さを心配され、建替かリフォームかを迷われていました。しかし、「これまで慣れ親しんだ、愛着のある我が家から離れがたい」というお気持ちもあり、「耐震+増築」のリフォームプランをご提案。耐震補強とバリアフリーを主軸に、設備の取替え、収納力のアップ、外観のリフレッシュなどさまざまな不安を解消するリフォームとなりました。単なる機能の向上だけでなく、お客様の好みと担当者の細やかな心配りも取り入れたリフォームで、「お気に入りの我が家」が「さらに暮らしやすい心地よい我が家」になりました。



外壁はサイディングを張替え、お色直し。外構も、土地を有効的に使用できるよう、駐車スペースを拡張し一新。

LDKを出ると、広々としたウッドデッキへ。洗濯物をしっかり干すのに最適。夜はお酒を楽しむ憩いの場。

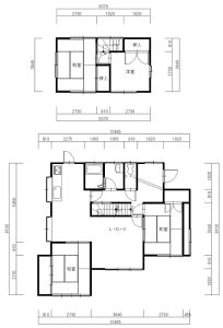
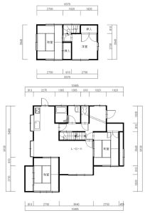
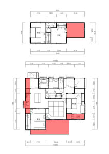
愛着のあるお住まいの雰囲気を壊さぬよう、間取りはそのままに。合計2.6坪の増築部を利用して狭かった浴室と洗面所を拡張。パントリーと広縁も新設し、暮らしにポイントをプラス。2階には小屋裏収納を設け、スペースを有効活用。