| 建物種別 | 戸建て |
|---|---|
| 改修規模 | 全面リフォーム |
| 築年数 | 築35年 |
| 総工事面積 | 約79m2 |
| 施工期間 | 約132日 |
| 総工事費 | 約2486万円 |
| 地域 | 愛知県 |
| 家族構成 | ご夫妻様、娘様 |
| テーマ | バリアフリー、自然素材、耐震 |
憧れだった漆喰塗りの天井・壁と羽目板の腰壁。念願が叶い、お施主様も大のお気に入り。
「朝食用に。」と作ったカウンターの食卓スペース。配膳もしやすく、3食の食事をここで取るほど、ご家族内でもご好評。
1216(0.75坪)から1616(1坪)のユニットバスにサイズUP。寒さを気にせず、ゆったり快適に入浴を楽しめるように。
洗面ドレッシングは、奥まで取り出しやすいパノラマスライドを採用。ハンガーパイプを設置し、お洗濯も便利に。
日常的に使用するLDKと合わせ、寝室も漆喰塗りと羽目板の仕上に。自然素材の空間で質の良い睡眠を。
LED照明は、調光付ダウンライトで心地の良い空間を演出。収納は、衣装をたくさんお持ちのお施主様も安心の大容量クローゼットを設置。
キッチン側を増築したことで、新たにパントリーを設置。遮るものがなく、キッチンとパントリーをスムーズに行き来。
小屋裏のスペースも有効活用。片付けるのが大変な大きな季節用品等を収納したり、特別な空間として楽しむことが可能。
階段下収納・各部屋のクローゼット内には、使い勝手に合わせた棚を設置。
トール型の玄関収納を採用することで、収納力UP。
将来の事も考えて、玄関ドア横に手すりを設置。上り框への上り下りがラクに。
照明の数を増やし、暖かみがあり、安心できる明るさに。
外壁はサイディングを張替え、お色直し。外構も、土地を有効的に使用できるよう、駐車スペースを拡張し一新。
LDKを出ると、広々としたウッドデッキへ。洗濯物をしっかり干すのに最適。夜はお酒を楽しむ憩いの場。
築35年のK様邸。老朽化と耐震性の低さを心配され、建替かリフォームかを迷われていました。しかし、「これまで慣れ親しんだ、愛着のある我が家から離れがたい」というお気持ちもあり、「耐震+増築」のリフォームプランをご提案。耐震補強とバリアフリーを主軸に、設備の取替え、収納力のアップ、外観のリフレッシュなどさまざまな不安を解消するリフォームとなりました。単なる機能の向上だけでなく、お客様の好みと担当者の細やかな心配りも取り入れたリフォームで、「お気に入りの我が家」が「さらに暮らしやすい心地よい我が家」になりました。



憧れだった漆喰塗りの天井・壁と羽目板の腰壁。念願が叶い、お施主様も大のお気に入り。

「朝食用に。」と作ったカウンターの食卓スペース。配膳もしやすく、3食の食事をここで取るほど、ご家族内でもご好評。
冬は寒く、また、老朽化が進み、いつタイルが剥がれてくるか心配だった浴室。

1216(0.75坪)から1616(1坪)のユニットバスにサイズUP。寒さを気にせず、ゆったり快適に入浴を楽しめるように。

洗面ドレッシングは、奥まで取り出しやすいパノラマスライドを採用。ハンガーパイプを設置し、お洗濯も便利に。

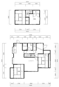
愛着のあるお住まいの雰囲気を壊さぬよう、間取りはそのままに。合計2.6坪の増築部を利用して狭かった浴室と洗面所を拡張。パントリーと広縁も新設し、暮らしにポイントをプラス。2階には小屋裏収納を設け、スペースを有効活用。