PanasonicリフォームClub
TOP TOPリフォーム事例検索検索結果詳細

愛知県 Y様邸

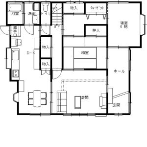
居間とつながるDK

お店の情報・お問い合わせ  このお店の他の事例を見る
データ
建物種別 戸建て
改修規模 増改築
築年数 築26年
施工期間 約78日
地域 愛知県
テーマ バリアフリー、明るい部屋、広々、その他
全国の「Panasonic リフォーム Club」のお店をさがす
リフォームポイント

1年前にリフォームしたばかりの居間とつながるように部屋を配置。
キッチンは外せなかった柱の位置にピッタリ納まるようにL型でサイズオーダー。
邪魔になりがちな柱や筋交いも動線・視線を遮らず、気になりません。

お客様の声
部屋や設備・家具の配置など、いろいろな提案を頂いた中で、この和室の1.5帖の増築案が、自分たちの願いに一番ぴったりくるものでした。おかげ様でずっと気になっていた仏壇もきちんと納まる、念願の明るい和室になり大満足です。
DKの取り外せない筋交いも、結果的にはいいアクセントになって気に入ってます。
ビフォーアフター
ビフォー

西側に設置されていたダイニングキッチンは、細長く、長い動線を必要としていました。

アフター

外せなかった柱の位置までピッタリにサイズオーダーしたキッチン。
L型のキッチンで動線は短くなり、作業効率もUP。

ビフォー

アフター

吊戸棚は設置せずにスッキリと開放的な空間に。

ビフォー

アフター

外せなかった柱と筋交いは、カウンターの高さだけを壁にし、上部は空けて筋交いを見せる仕上げに。圧迫感を軽減し、光もさえぎりません。

ビフォー

アフター

このリフォームで採用したパナソニック商品
  • 床材 ジョイハードフロアー[終了品]
  • 内装ドア リビエ[終了品]
  • キッチン リビングステーションL[終了品]
現行のおすすめ商品
施工店情報
パナソニックリフォームクラブ
シンセイ建設株式会社
(旧:リファインおおぶ)

〒474-0061
住所:愛知県大府市共和町5-47
電話:0562-44-7055 FAX:0562-46-5293

■運営会社名 シンセイ建設株式会社
■建設業 愛知県知事許可(特-7)第43294号
■建築士事務所 一級建築士事務所:愛知県知事登録(い-4)第4881号

このお店の情報・事例を見る
シンセイ建設株式会社(旧:リファインおおぶ)のリフォーム事例一覧
このお店の他の事例を見る
ページの先頭へ