| 建物種別 | 戸建て |
|---|---|
| 改修規模 | 増改築 |
| 築年数 | 築26年 |
| 施工期間 | 約78日 |
| 地域 | 愛知県 |
| テーマ | バリアフリー、明るい部屋、広々、その他 |
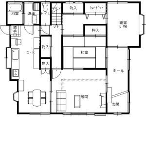
浴暖も設置し、あったかゆったりバスタイムを楽しめます。
階段下の高さの無いスペースを洗濯機置場に。奥行きが広がり動作もしやすくなりました。
トイレの位置を移動して、浴室と洗面所を広く。
浴室は1216(0.75坪)サイズから1616(1.0坪)サイズに。

お風呂は浴槽が狭く、ゆったりと脚を伸ばしてくつろぐ事ができませんでした。

浴暖も設置し、あったかゆったりバスタイムを楽しめます。
洗面脱衣室は奥行が狭く、洗濯機の操作のたびにワゴンを移動させていました。

階段下の高さの無いスペースを洗濯機置場に。奥行きが広がり動作もしやすくなりました。
