PanasonicリフォームClub
TOP TOPリフォーム事例検索検索結果詳細

愛知県 Y様邸

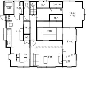
奥様の家事室

お店の情報・お問い合わせ  このお店の他の事例を見る
データ
建物種別 戸建て
改修規模 増改築
築年数 築26年
施工期間 約78日
地域 愛知県
テーマ バリアフリー、明るい部屋、広々、その他
全国の「Panasonic リフォーム Club」のお店をさがす
リフォームポイント

奥様の為の家事室を新設。
外の物干しへはもちろん、洗面、DK、2階へも行きやすい場所に配置。
奥様の使い勝手にピッタリ合うに収納棚を造作。

お客様の声
部屋や設備・家具の配置など、いろいろな提案を頂いた中で、この和室の1.5帖の増築案が、自分たちの願いに一番ぴったりくるものでした。おかげ様でずっと気になっていた仏壇もきちんと納まる、念願の明るい和室になり大満足です。
DKの取り外せない筋交いも、結果的にはいいアクセントになって気に入ってます。
ビフォーアフター
ビフォー

アフター

施工店情報
パナソニックリフォームクラブ
シンセイ建設株式会社
(旧:リファインおおぶ)

〒474-0061
住所:愛知県大府市共和町5-47
電話:0562-44-7055 FAX:0562-46-5293

■運営会社名 シンセイ建設株式会社
■建設業 愛知県知事許可(特-7)第43294号
■建築士事務所 一級建築士事務所:愛知県知事登録(い-4)第4881号

このお店の情報・事例を見る
シンセイ建設株式会社(旧:リファインおおぶ)のリフォーム事例一覧
このお店の他の事例を見る
ページの先頭へ