| 建物種別 | 戸建て |
|---|---|
| 改修規模 | 全面リフォーム |
| 築年数 | 築30年 |
| 施工期間 | 約45日 |
| 地域 | 千葉県 |
| 家族構成 | ご主人+奥様 |
| テーマ | 自然素材、ペット、その他 |
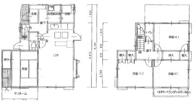
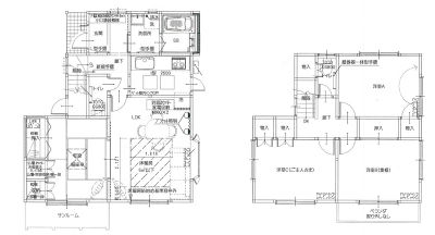
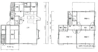
奥様が長い間コレクションされていた雑貨が似合う住まいにプラン。
白を貴重にしていた住まいを木目に変えるほどのこだわりです。
将来の事を考え仏壇収納をクローゼットに組込み、気になっていた配線の収納もスッキリ。かわいいネコちゃんの入口も作りました。
老朽化した設備機器の取替えでは満足できなかったので、白を基調としたお住まいから、
サッシまで取り替えるほどのこだわりで全て木目にされました。素敵な雑貨が似合う住まいになりました。

