キッチン空間とリビングダイニング空間を分け、どちらも十分な広さになるように造り変えました。
食事をしながら家族で会話を楽しむ理想の空間になりました。
吊り戸はなくし家族が見渡せるようにしました。L型の作業スペースは広々使え、4世代一緒に料理が楽しめます。
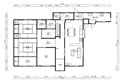
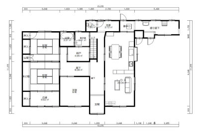
築50年になるお住まい。娘様ご家族との同居を機に、耐震リフォームをご決断。
家の中心であるLDKは家族みんなが集まる空間を目指しました。
4世代7人家族が集まるにはダイニングスペースが狭く、一緒に食事が出来なくなることが予想されました。

キッチン空間とリビングダイニング空間を分け、どちらも十分な広さになるように造り変えました。

食事をしながら家族で会話を楽しむ理想の空間になりました。
キッチン収納が目隠しの役割をしており、料理中は孤立感がありました。

吊り戸はなくし家族が見渡せるようにしました。L型の作業スペースは広々使え、4世代一緒に料理が楽しめます。
