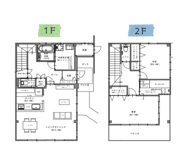
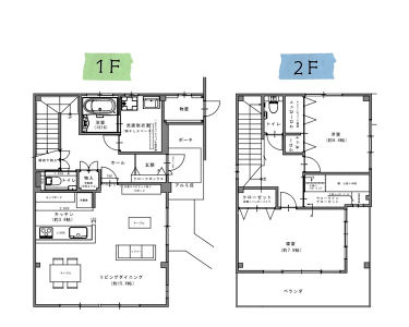
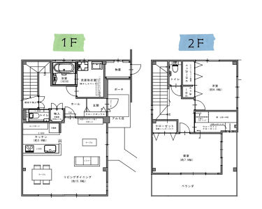
| 建物種別 | 戸建て |
|---|---|
| 改修規模 | 全面リフォーム |
| 築年数 | 築30年 |
| 工事面積 | 約32m2 |
| 施工期間 | 約100日 |
| 工事費 | 約270万円 |
| 地域 | 愛知県 |
| 家族構成 | 大人4人+子供1人 |
| テーマ | 団らんキッチン、明るい部屋、オール電化、その他 |
寝室は二面の大きな窓からたっぷりと光が差し込み、毎朝を清々しい気持ちで迎えられます。
二重サッシなので夏は涼しく、冬は暖か。遮音効果もあり、快適な寝室です。
アクセントの壁紙はシックなブラックで落ち着いた印象の広々空間となりました。
大容量のクローゼットを設置しました。
白を基調としたウォークインクローゼットを新設しました。
使い勝手を考え、パイプハンガーや棚を配置しました。
寝室の大きな二面窓は二重サッシに取替え、断熱性・遮音性が向上しました。
以前は収納家具を配置しておりましたが、クローゼット収納に替え、スペースを広く活用出来るようにしました。
和室を洋室に替え、押入れも使い勝手の良いハンガーパイプや棚付きのクローゼットへ。
白を基調としたウォークインクローゼットも新設しました。


見晴らしの良い大開口窓ですが、夏暑く冬が寒いお部屋でした。

寝室は二面の大きな窓からたっぷりと光が差し込み、毎朝を清々しい気持ちで迎えられます。
二重サッシなので夏は涼しく、冬は暖か。遮音効果もあり、快適な寝室です。
シャンデリアを時代に合わせダウンライト照明にしました。

アクセントの壁紙はシックなブラックで落ち着いた印象の広々空間となりました。
和室から洋室にしました。

大容量のクローゼットを設置しました。

白を基調としたウォークインクローゼットを新設しました。
使い勝手を考え、パイプハンガーや棚を配置しました。
