| 建物種別 | 戸建て |
|---|---|
| 改修規模 | 全面リフォーム |
| 築年数 | 築30年 |
| 工事面積 | 約21m2 |
| 施工期間 | 約100日 |
| 工事費 | 約300万円 |
| 地域 | 愛知県 |
| 家族構成 | 大人4人+子供1人 |
| テーマ | 団らんキッチン、明るい部屋、オール電化、その他 |
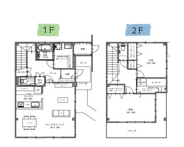
階段数を増やし幅を広げ津無理なく登れるようになりました。
また、手摺りを付けて安全面にも配慮しました。
壁を白くしたことで、窓からの光の反射を有効利用しました。
玄関にはミラー付きのシューズクロークを設置しました。
VERITISで色柄を統一した美しい玄関ホールになりました。
以前は離れだった為、アプローチがあるのみで、玄関スペースはありませんでした。
生活スペースの中心に玄関を配置し、各部屋への移動をスムーズにしました。
ミラー付きのシューズクロークを設置。お出かけ前のチェックもバッチリです。
階段は急勾配で上り下りが大変でしたが、段数を増やし幅を少し広げて無理なく登れるようになりました。
また、手摺りを設置し、安全面にも配慮しました。
壁を白くしたことで、窓からの光の反射を有効活用。とても明るくなりました。


階段が急勾配で上り下りが一苦労でした。

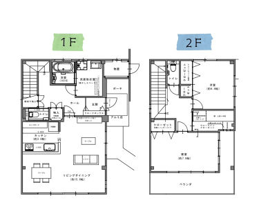
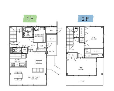
階段数を増やし幅を広げ津無理なく登れるようになりました。
また、手摺りを付けて安全面にも配慮しました。
壁を白くしたことで、窓からの光の反射を有効利用しました。

玄関にはミラー付きのシューズクロークを設置しました。
VERITISで色柄を統一した美しい玄関ホールになりました。
