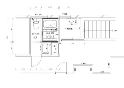
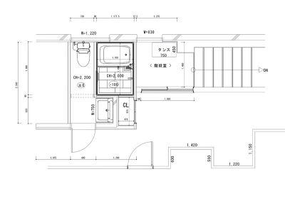
階段室踊り場を縮小し、1坪のお風呂を設置。広くなり、しっかり足が伸ばせるように。
1日の身体の疲れを癒すジェットバス。入浴の楽しみが広がるバステレビ。快適でくつろげるバスタイムが実現。
H様ご夫婦が結婚される際、2世帯住宅リフォームをしてもらいましたが、今ではライフスタイルが変わり使い辛くなりました。そこで、毎日の生活を考え、スペースを有効に活用した間取りとこだわりのデザイン・機能で快適な水廻りをご提案しました。お風呂の時間が大好きなご家族のために、バスタイムの快適さはもちろん、毎日のお掃除や家事動線、洗面所やトイレも使い勝手が良くなるように間取り変更も提案し、水廻りが快適な空間に生まれ変わりました。



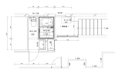
階段室踊り場を縮小し、1坪のお風呂を設置。広くなり、しっかり足が伸ばせるように。

1日の身体の疲れを癒すジェットバス。入浴の楽しみが広がるバステレビ。快適でくつろげるバスタイムが実現。
