PanasonicリフォームClub
TOP TOPリフォーム事例検索お困りごとお困りごと(せまい)詳細

愛知県 T様邸

アクティブシニアのための明るく快適なマイホーム

お店の情報・お問い合わせ  このお店の他の事例を見る
データ
建物種別 戸建て
改修規模 増改築
築年数 築34年
施工期間 約71日
地域 愛知県
家族構成 2世帯大人3人
テーマ バリアフリー、明るい部屋、広々
全国の「Panasonic リフォーム Club」のお店をさがす
リフォームポイント

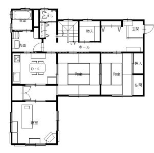
「明るく風を感じる家にしたい」というご要望に対し、根本的な問題解決のために蹴込み板のない「オープン階段」への架け替えをご提案。
使っていなかった和室や、狭く使い勝手の悪かった水廻りの間取りを変更し、「広く・使いやすい、明るく・風を感じる」お住まいへのリフォームとなりました。

お客様の声
今回のリフォームで一番気に入っているのが、明るくなった階段です。風通しも良くなり、朝の陽光とともに一日が始まるのがとても気持ち良いです。
また、大好きなヨガの後の入浴も格別です。明るく広くなったお風呂でゆったりと最高のバスタイムを楽しんでいます。
ビフォーアフター
ビフォー

暗く狭かった浴室。

アフター

間取りの変更により、1216(0.75坪)から1616(1坪)にサイズUP。白を基調とし、窓も2ヶ所設け、明るい浴室になりました。

ビフォー

浴室横に洗面化粧台はあるものの、間仕切りが無く、脱衣室がありませんでした。

アフター

洗面化粧台・洗濯機を設置した洗面脱衣室ができました。サイドキャビネットや造作棚で収納スペースもしっかり確保。パネル仕様の扉で明るさにも配慮。

ビフォー

暗く狭かったトイレ。

アフター

間取りの変更とタンクレストイレの採用で、スペースが広がりました。

ビフォー

狭く、使い勝手の悪かった水廻りの間取りを変更することに。

アフター

浴室のサイズアップ、脱衣室・ダイニングキッチンのスペースを確保できました。

このリフォームで採用したパナソニック商品
施工店情報
パナソニックリフォームクラブ
シンセイ建設株式会社
(旧:リファインおおぶ)

〒474-0061
住所:愛知県大府市共和町5-47
電話:0562-44-7055 FAX:0562-46-5293

■運営会社名 シンセイ建設株式会社
■建設業 愛知県知事許可(特-7)第43294号
■建築士事務所 一級建築士事務所:愛知県知事登録(い-4)第4881号

このお店の情報・事例を見る
シンセイ建設株式会社(旧:リファインおおぶ)のリフォーム事例一覧
このお店の他の事例を見る
ページの先頭へ