| 建物種別 | 戸建て |
|---|---|
| 改修規模 | 増改築 |
| 築年数 | 築26年 |
| 総工事面積 | 約72m2 |
| 施工期間 | 約78日 |
| 総工事費 | 約1022万円 |
| 地域 | 愛知県 |
| テーマ | バリアフリー、明るい部屋、広々、その他 |
陽の当たる明るい和室。
内装は白木の建具枠でより明るい空間に。無垢の枠材を使い、大壁でもしっかり和を演出。
仏間と床の間の1.5帖分をプチ増築。
外せなかった柱の位置までピッタリにサイズオーダーしたキッチン。
L型のキッチンで動線は短くなり、作業効率もUP。
吊戸棚は設置せずにスッキリと開放的な空間に。
外せなかった柱と筋交いは、カウンターの高さだけを壁にし、上部は空けて筋交いを見せる仕上げに。圧迫感を軽減し、光もさえぎりません。
浴暖も設置し、あったかゆったりバスタイムを楽しめます。
階段下の高さの無いスペースを洗濯機置場に。奥行きが広がり動作もしやすくなりました。
家事室からのの各部屋への動線。
設置した棚は収納する物のサイズと、出窓に無理せず手が届く高さ奥行きに設定し造作。
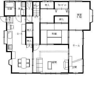
「もっと日の当たる南側に和室を変えて仏間をつくりたい」
「1年前にリフォームしたばかりの居間はそのままに」
この二つを大前提に、大きく間取りを変更。
仏間・床の間分の1.5帖を増築したことで、各部屋の配置が整い、奥様の為の家事スペースも確保。
構造部分を極力傷めないようにし、かつ、動線を良くした部屋の配置ができました。

建物の真ん中に位置しており、陽が当たらず暗かった和室。

陽の当たる明るい和室。
西側に設置されていたダイニングキッチンは、細長く、長い動線を必要としていました。

外せなかった柱の位置までピッタリにサイズオーダーしたキッチン。
L型のキッチンで動線は短くなり、作業効率もUP。

吊戸棚は設置せずにスッキリと開放的な空間に。

外せなかった柱と筋交いは、カウンターの高さだけを壁にし、上部は空けて筋交いを見せる仕上げに。圧迫感を軽減し、光もさえぎりません。
お風呂は浴槽が狭く、ゆったりと脚を伸ばしてくつろぐ事ができませんでした。

浴暖も設置し、あったかゆったりバスタイムを楽しめます。
