| 建物種別 | 戸建て |
|---|---|
| 改修規模 | 改装・設備交換 |
| 築年数 | 築30年 |
| 工事面積 | 約3.42m2 |
| 施工期間 | 約37日 |
| 工事費 | 約155万円 |
| 地域 | 岐阜県 |
| 家族構成 | 2世帯6人(大人3人、子供3人) |
| テーマ | 二世帯、バリアフリー |
浴室サッシガラスをペアガラスに交換し、省エネ住宅ポイントを利用。床暖房・暖房換気乾燥機・酸素美泡湯で寒さ対策バッチリ!
スゴピカカウンター・ささっと排水口・カビシャット・暖房換気乾燥機つきで汚れにくく、お掃除も楽チン。
バスルーム1616に床暖房・暖房換気乾燥機、39℃のお湯でもぽかぽか温まる酸素美泡湯でしっかり寒さ対策をしました。暖房換気乾燥機つきで汚れにくく、お掃除もしやすくなりました。お客様が気になられていた段差もなくし、手すりを兼ねたスライドバーも設置。今も将来も安心できます。


お掃除しやすく、冬場でも温かいお風呂に入りたい。

浴室サッシガラスをペアガラスに交換し、省エネ住宅ポイントを利用。床暖房・暖房換気乾燥機・酸素美泡湯で寒さ対策バッチリ!

スゴピカカウンター・ささっと排水口・カビシャット・暖房換気乾燥機つきで汚れにくく、お掃除も楽チン。
洗面の横に勝手口があり冬場は寒い。

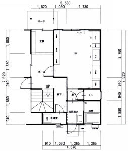
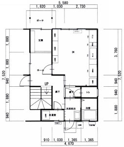
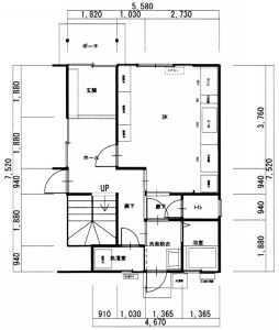
浴室を広くした。洗面脱衣室の配置を変え、またDKの部分を減らし大きくした事で使いやすくなった。