| 建物種別 | 戸建て |
|---|---|
| 改修規模 | 改装・設備交換 |
| 築年数 | 築30年 |
| 工事面積 | 約14.14m2 |
| 施工期間 | 約37日 |
| 工事費 | 約110万円 |
| 地域 | 岐阜県 |
| 家族構成 | 2世帯6人(大人3人、子供3人) |
| テーマ | 二世帯、バリアフリー |
カラーをホワイトにし、明るく清潔感のあるキッチンになりました。内装下げ材色も明るめの色調で、キッチンパネルもネオナイーブ柄ホワイト使用。
キッチンや材色もホワイトカラーにし、明るく清潔感のあるキッチンとなりました。省エネ・洗浄力・デザイン性に優れた食器洗い乾燥機も組み込みました。オール電化にし、母屋と離れで2箇所あった電気メーターを統一し光熱費を抑えることができます。


古くなった流し台を取替し、明るく清潔感のある仕上がりにしたい。

カラーをホワイトにし、明るく清潔感のあるキッチンになりました。内装下げ材色も明るめの色調で、キッチンパネルもネオナイーブ柄ホワイト使用。
洗面の横に勝手口があり冬場は寒い。

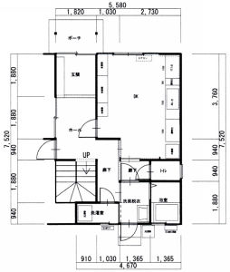
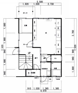
浴室を広くした。洗面脱衣室の配置を変え、またDKの部分を減らし大きくした事で使いやすくなった。