PanasonicリフォームClub
TOP TOPリフォーム事例検索お困りごとお困りごと(収納が足りない)詳細

千葉県 Y様邸

重厚感溢れる中、懐かしく帰りたくなる温かい家

お店の情報  このお店の他の事例を見る
データ
建物種別 戸建て
改修規模 全面リフォーム
築年数 築30年
総工事面積 約105m2
施工期間 約45日
地域 千葉県
家族構成 ご主人+奥様
テーマ 自然素材、ペット、その他
全国の「Panasonic リフォーム Club」のお店をさがす
リフォームポイント

奥様が長い間コレクションされていた雑貨が似合う住まいにプラン。
白を貴重にしていた住まいを木目に変えるほどのこだわりです。
将来の事を考え仏壇収納をクローゼットに組込み、気になっていた配線の収納もスッキリ。かわいいネコちゃんの入口も作りました。
老朽化した設備機器の取替えでは満足できなかったので、白を基調としたお住まいから、
サッシまで取り替えるほどのこだわりで全て木目にされました。素敵な雑貨が似合う住まいになりました。

担当者の声
多田 和代

金額の高いリフォーム工事でかなり悩まれていました。
何度も打合せをさせて頂き弊社に決定された理由が、
営業だけが伺うのでなく、店長はじめ工務も1人だけでなく何人も見に伺ったりと、
会社全体で住まいの事を考えてくれているところだと言って頂きました。
今では施工後もイベントに来て下さるお付き合いになりました。
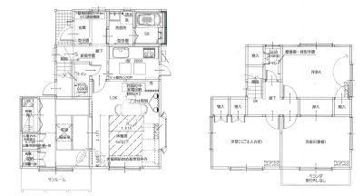
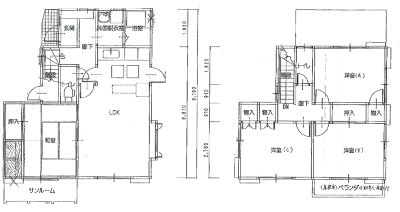
ビフォーアフター
ビフォー

アフター

ビフォー

アフター

ビフォー

アフター

ビフォー

アフター

ビフォー

アフター

ビフォー

アフター

このリフォームで採用したパナソニック商品
  • キッチン リビングステーション[終了品]
  • リビエ クローゼット扉[終了品]
  • 内装ドア リビエ[終了品]
現行のおすすめ商品
施工店情報
パナソニックリフォームクラブ
リファイン習志野 秋山木材産業株式会社
(旧:リファイン習志野)

〒275-0001
住所:千葉県習志野市東習志野6-12-3
電話:047-493-1133 FAX:047-474-3321

■運営会社名 秋山木材産業株式会社
■建設業 千葉県知事許可(般-2)第8572号
■建築士事務所 二級建築士事務所:千葉県知事登録第2-2405-5994号

このお店の情報・事例を見る
リファイン習志野 秋山木材産業株式会社(旧:リファイン習志野)のリフォーム事例一覧
このお店の他の事例を見る
ページの先頭へ