| 建物種別 | 戸建て |
|---|---|
| 改修規模 | 全面リフォーム |
| 築年数 | 築60年 |
| 施工期間 | 約120日 |
| 地域 | 愛知県 |
| 家族構成 | 夫婦 |
| テーマ | 平屋建て、介護、明るい部屋、広々 |
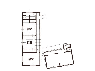
8畳二間の和室を広々したLDKに。テーブルを置けるスペースを確保し、キッチンを中心とした回遊動線も実現。ソイルブラックの室内ドアとブラック色の折下げ天井が大空間LDKのアクセントに。ニッチは遊び心のあるモザイクタイルで仕上げました。
テレビ収納は面材の風合いが美しいオーダー家具。配線を見せないデザインにより、生活感が出ないよう配慮しました。
ご実家のお母様を介護する際の拠点として、敷地内の別棟と納屋をウッドデッキでつなぎました。生活感を極力抑えたホテルライクなインテリアに仕上げ、親子の時間、夫婦の時間を心豊かに過ごせる空間となりました。


8畳二間の和室を広々したLDKに。テーブルを置けるスペースを確保し、キッチンを中心とした回遊動線も実現。ソイルブラックの室内ドアとブラック色の折下げ天井が大空間LDKのアクセントに。ニッチは遊び心のあるモザイクタイルで仕上げました。
