PanasonicリフォームClub
TOP TOPリフォーム事例検索詳細

愛知県 I様邸

世代をつなぐ平屋リノベーション。
家族もつなげるホテルライク空間に。

お店の情報・お問い合わせ  このお店の他の事例を見る
データ
建物種別 戸建て
改修規模 全面リフォーム
築年数 築60年
施工期間 約120日
地域 愛知県
家族構成 夫婦
テーマ 平屋建て、介護、明るい部屋、広々
全国の「Panasonic リフォーム Club」のお店をさがす
リフォームポイント

ご実家のお母様を介護する際の拠点として、敷地内の別棟と納屋をウッドデッキでつなぎました。生活感を極力抑えたホテルライクなインテリアに仕上げ、親子の時間、夫婦の時間を心豊かに過ごせる空間となりました。

お客様の声
家族と過ごす穏やかな時間とホテルライクな空間に癒されます。
母屋での用事を済ませた後は別棟へ。そこはホテルのようなおしゃれな空間で、特にリビングでの映画鑑賞は格別なひとときです。ウッドデッキはアウトドアリビングとして楽しんでいます。
担当者の声
虎澤 諒

ホテルライクな非日常感を演出するため内装は上品なモノトーンで統一。将来息子様ご一家が住まわれることを想定し、機能的な間取り・設備も充実させました。
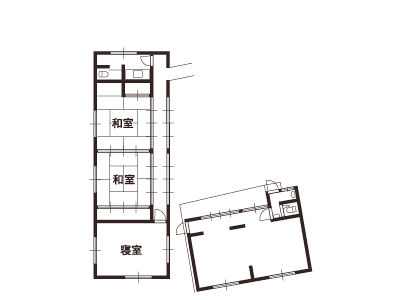
ビフォーアフター
ビフォー

アフター

施工店情報
パナソニックリフォームクラブ
株式会社ナイスホーム
(旧:リファイン安城)

〒446-0074
住所:愛知県安城市井杭山町高見3番地1
電話:0566-77-5871 FAX:0566-77-5832

■運営会社名 株式会社ナイスホーム
■建設業 愛知県知事許可(特-4)第57195号
■建築士事務所 一級建築士事務所:愛知県知事登録(い-5)第12668号

このお店の情報・事例を見る
株式会社ナイスホーム(旧:リファイン安城)のリフォーム事例一覧
このお店の他の事例を見る
ページの先頭へ